EasyManua.ls Logo

EVOCA Kalea Plus - Page 104

Default Icon
108 pages
Print Icon
To Next Page IconTo Next Page
To Next Page IconTo Next Page
To Previous Page IconTo Previous Page
To Previous Page IconTo Previous Page
Loading...
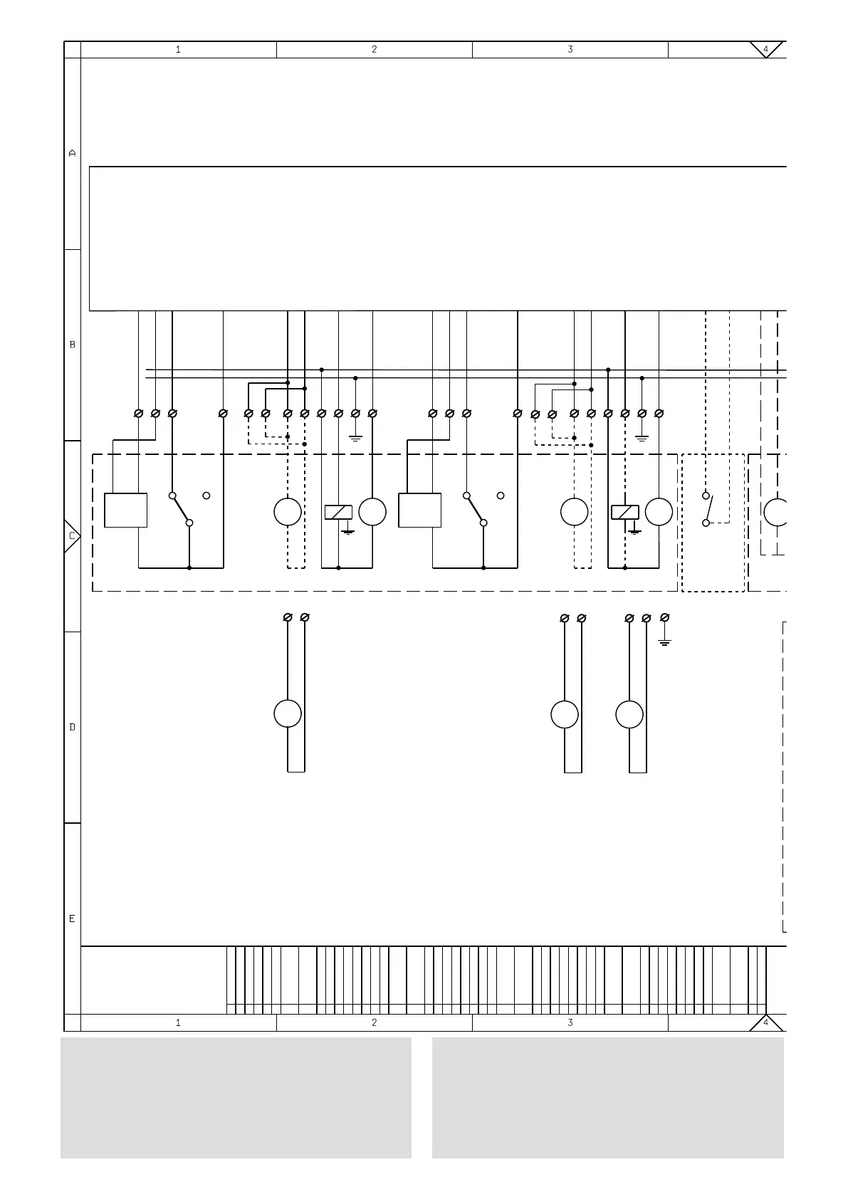
CM MOTOR CAM
ESC1-. COFFEERELEASEELECTROMAGNET
ICM MOTORCONTROLSWITCH
ID1-.. COFFEEDOSESWITCH
IDEC DECAFFEINATEDDOORSWITCH
M COFFEEUNITMOTOR
MAC1-.COFFEEGRINDER
MCAF1. COFFEECONTAINERPRESENCEMICRO
MD1-.. INGREDIENTMOTORS
MF1-.. INSTANTWHIPPERMOTORS
MFND SOLIDRESIDUECONTAINERMICRO
MIP DOORMICROSWITCH
MLQD LIQUIDRESIDUECONTAINERMICRO
MMA1-.GRINDINGREGULATIONMOTOR
MSOL1. INSTANTCONTAINERPRESENCEMICRO
SLED LEDBOARD
SM MACHINEBOARD
VENT FAN
A
K
A
K
SM
EARTH
Na
EARTH
Na
MAC1
ESC1
OUT
1
3
2
ID1
+12V
GND
ID1
DIG IN10
J17.4
DIG INT IN1
J13.10
70
80
GND
12V
0
92
J13.14
J13.15
X12.8
X12.3
X12.1
X12.10
X12.13
X12.5
X12.14
X12.6
87
J8.4 OUT 2
J8.3
90
OUT 1
MAC2
ESC2
OUT
1
3
2
ID2
+12V
GND
ID2
DIG IN11
J17.5
J13.11
78
GND
12V
0
92
J13.14
J13.15
X13.8
X13.3
X13.1
X13.10
X13.13
X13.5
X13.14
X13.6
96
J8.6 OUT 4
J8.5
60
OUT 3
DIG INT IN2
viola
Grinder Shelf
X14.1
M
+
-
OUT
+5V
GND
ICM
CM
X9.4
3 2 5 1
Z4000 Shelf
93
DIG INT IN0J13.9
+5V
2
J19.4
GND
0
J19.3
IN TACHO
8
J19.2
Z4000 MOT P
Z4000 MOT MJ19.1
J19.5
60
6
X12.4
X12.11
20
J18.9
3
DOS MOT P7
DOS MOT COM
J18.1
20
DOS MOT P8
X13.4
X13.11
J18.10
6
J18.1
DOS MOT COM
X12.4
X12.11
+
-
MD1
X13.11
X13.4
+
-
+
-
Optional
Instant
DOS MOT P1
MD1
DOS MOT COM
J18.3
VENT2
3
MF1
J9.2 OUT 6
X16.1
X16.2
12V
DRIVE FAN
2
J6.1
J6.4
X15.2
VENT1
-
+
X17.1
0
J16.7 LED VANO-
2
J16.6 LED VANO+
X19.1
X19.2
+
MMA1
-
+
-
MD2
MMA2
-
+
X14.2
0
J13.15 GND
80
X15.1
J14
5
9
3
J14
3
J14
4
MIP
MCAF1
MCAF2
7
J14
1
MFND
X8.1
X8.2
X8.3
X8.4
J14
2
7v
8
MSOL
62
J13
1
Idec
0
J13
15
J17.15 GND
0
X18.2
J17.9 DIG IN15
X18.1
91
MLQD
X8.5
X8.6
SLED
J17.3 DIG IN9
60
MILK
GND
OUT
EMPTY
+12V
0
1 6
J13.14
92
12V
X17.2
X17.3
0
J13.15 GND
J3.2 RXD
J2.11 GND
J2.10 TXDMDB
J2.9 RXDMDB
J2.8 GND
J3.3 TXD
J3.5 GND
J1
X21.6
X21.5
X21.4
X21.2
X20.2
X20.3
X20.5
Touchscreen 7"
6
7
1
2
3
5
CN53
X21.1
J2.7 24VDC
MDB
TELEMETRY
PAYMENTS SYSTEMS
1 5 8 9
4
9
5
1
9
1
5
+
-
J18.5
MD2
93
J18.2
20
7
DOS MOT P3
+
-
MF2
X13.6
X13.13
X13.14
X20.2
X20.1
IVS
J13.3 DIG_IN2
GNDJ17.16
X21.2
X21.1
A3
T
h
is drawing contains confidential information and is
the property of the
holding company of N&W or one of its
subsidiaries,without whose permission it may not be
copiedor discosed to third parties of otherwise used.
This drawing has to be returned promptly upon request
to N&W.
6
9
8
7
5
4
3
2
1
0
6
9
8
7
5
4
3
2
1
0
6
9
8
7
5
4
3
2
1
0
6
9
8
7
5
4
3
2
1
0
6
9
8
7
5
4
3
2
1
0
LEGENDA
CHECKEDPREPAREDSHEETDATE
DEFINITIONMODEL
BLANCO
GRIS
ROSA
ROSA
AZUL CLARO
OSCURO
VERDE
AMARILLO
NARANJA
ROJO
MARRON
NEGRO
WEISS
GRAU
LILLA
ROSA
HELLBLAU
BLAU
GRUEN
GELB
ORANGE
ROT
BRAUN
SCHWARZ
BLANC
GRIS
ROSE
ROSE
BLEU CIEL
BLEU
VERT
JAUNE
ORANGE
ROUGE
MARRON
NOIR
WHITE
GREY
VIOLET
PINK
LIGHT BLUE
BLUE
GREEN
YELLOW
ORANGE
RED
BROWN
BLACK
BIANCO
GRIGIO
VIOLA
ROSA
AZZURRO
BLU
VERDE
GIALLO
ARANCIO
ROSSO
MARRONE
NERO
1/1
VERSIONPART NUMBER
-
-
ELECTRICAL DIAGRAM
KALEA PLUS
608612302
BISCARO
-
SX 6086 123 02

Related product manuals