EasyManua.ls Logo

Extraflame Comfort Idro - Page 7

Extraflame Comfort Idro
20 pages
Print Icon
To Next Page IconTo Next Page
To Next Page IconTo Next Page
To Previous Page IconTo Previous Page
To Previous Page IconTo Previous Page
Loading...
777
800
59 74
56
C
D
663
106
645 30
42
781
777
664
97
360
275 223
142
A
B
E
D
C
E
D
C
37
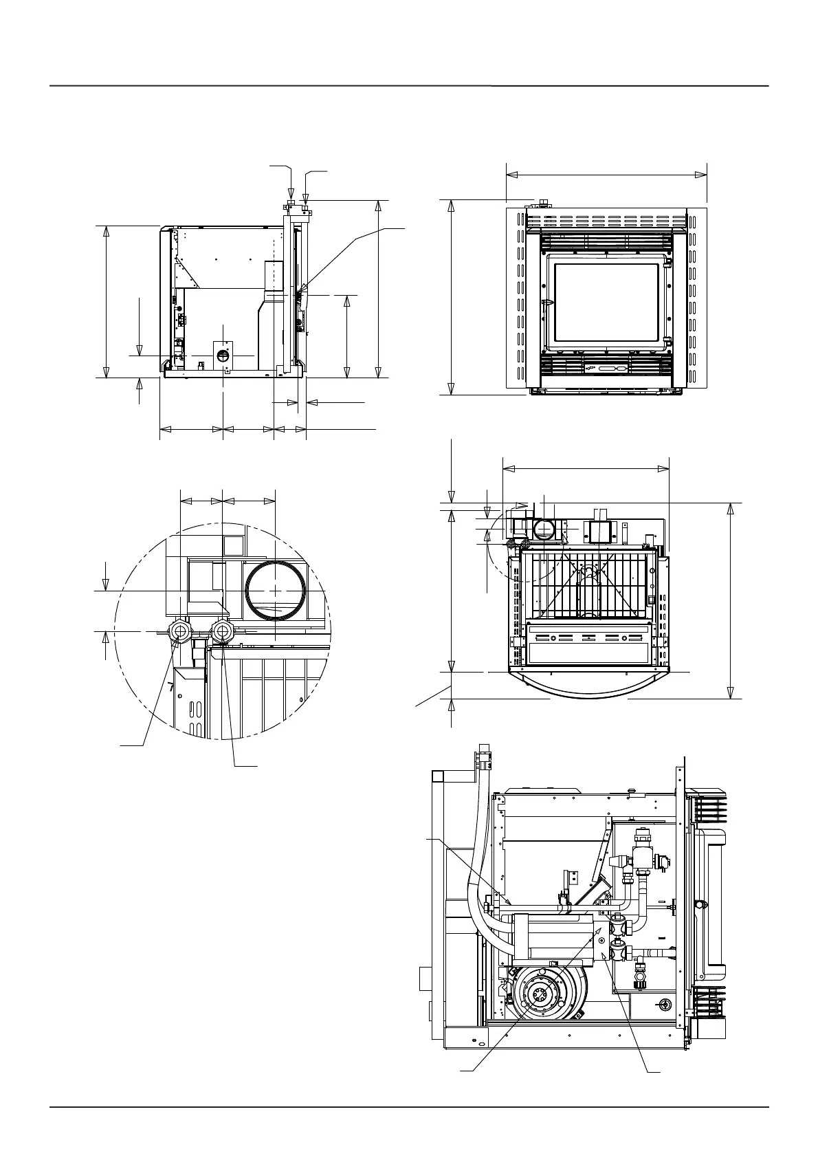
COMFORT IDRO TEMPLATE
7

Related product manuals