EasyManua.ls Logo

fadini Junior 633 - Advanced Wiring Configurations; Master;Slave Programmer Setup

fadini Junior 633
20 pages
Print Icon
To Next Page IconTo Next Page
To Next Page IconTo Next Page
To Previous Page IconTo Previous Page
To Previous Page IconTo Previous Page
Loading...
pag 20
Accessorio
Collegamenti elettrici
Dip - Switch e segnalazione LED delle varie funzioni
ELECTRICAL CONNECTIONS TO THE TERMINALS AND THEIR FUNCTIONS
Collegamenti per n°2
scorrevoli Junior 633
- Junior 650
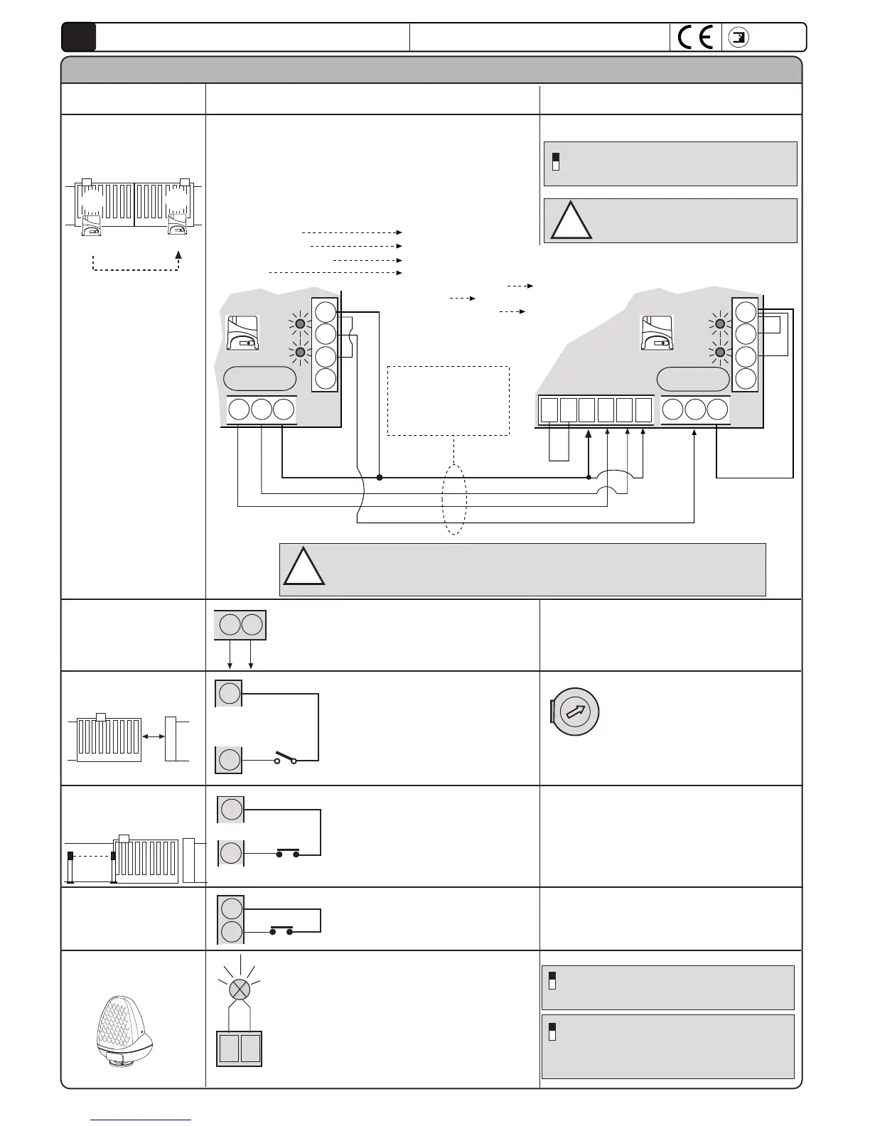
It is important to determine which Elpro 63 MASTER will command
and control the Elpro 63 SLAVE
All of the accessories for command, signalling and safety must
be connected to the terminals of the Elpro 63 MASTER
Relay output
courtesy lamp max 24V 50mA
Output for courtesy
lamp relay max 24V
50mA
18 19
2
1
Pedestrian
Common
Input pedestrian
20 23
-
+
Master Slave
12
ON: Elpro 63 SLAVE (2° Junior 633 - 650)
OFF: Elpro 63 MASTER (1° Junior 633 - 650
DIP-SWITCH 12:
n°4 x 1
eseguire i seguenti collegamenti:
Elpro 63 MASTER Elpro 63 SLAVE
Dip-Switch 12=OFF: Dip-Switch 12=ON:
terminal 15 (open) terminal 4 (open)
terminal 16 (close) terminal 5 (close)
terminal 17-23 (common) terminal 3 (common)
terminal 22 terminal 16 (close)
terminal 17 (common) 23
terminal 1 2
terminal 3(common) 6 (stop)
!
meccanica
FADINI
Elpro 63
GB
Junior 633 - Junior 650
Photocelles opening
Input
NC
Common
2321
Input NC for photocel installed in the
opening of the gate: in case of di
obstacle is detected during the opening,
reverses the direction for 20cm about
freeing the obstacle, then blocks waiting
for a command.
NC input contact 2°
Junior
2322
NC
Common
Pedestrian Trimmer: the opening
distance of the gate up to 3 metres is
adjusted for the pedestrian opening
OUTPUT230V max 25W for flasher
Flasher 230V
max 25W
DIP-SWITCH 4 e 8
ON: Preflashing before opening
OFF: without preflashing
4
ON: Flasher deactivated during pause in
automatic operation (with Dip 3= ON)
OFF: LFlasher during pause in automatic
operation (withDip 3= ON)
8
FADINI
l'apricancello
24 25
Entrance NA for external contact per
pedestrian opening
NC contact for connexion at 2° Junior
Refer to the previous pages for the
Dip-switch composition relative to the
individual accessories and functions.
A 4-wire cable is
necessary for the
connection between the
two Elpro 63
programmers
!
PROGRAMME JUNIOR MASTER AND SLAVE SEPARATELY ONCE THE ELECTRICAL
CONNECTIONS HAVE BEEN MADE AND THE DIP-SWITCHES SET CORRECTLY
OPEN
CLOSE
15 16 17
Master
COMMON
AP
CH
C
20 21 22 23
20 21 22 23
AP
CH
C
Slave
15 16 17
3
17
23
453 621
STOP
L22
L21
L22
L21

Related product manuals