EasyManua.ls Logo

fadini Junior 633 - Elpro 63 Functions and Diagnostics; Dip-Switch Functionality

fadini Junior 633
20 pages
Print Icon
To Next Page IconTo Next Page
To Next Page IconTo Next Page
To Previous Page IconTo Previous Page
To Previous Page IconTo Previous Page
Loading...
pag 18
ATTENTION !! The installation of this product must be performed by professionally trained and qualified personnel according to the safety regulations
in force.
It is important to carefully read and follow the instructions so as to avoid a faulty use of the same product. The ELPRO 63 electronic programmer
was conceived and manufactured for the management of the electromechanical Junior 633 and Junior 650 sliding gate openers with 230 V motors
Any other use different from that specified in this instruction booklet is to be considered prohibited.
ATTENTION !! The Meccanica Fadini Company declines any and all responsibility for ensuing damages to things and/or persons due to any faulty
installation or the lack of bringing the system up to code according to the laws and regulations in force. The application of the Machine Directive
98/37/EEC is required.
All of the maintenance and/or test operations of the status of the product must be performed by professionally trained and qualified personnel.
ATTENTION !! Important: before carrying out any procedure on the PCB card, disconnect the electrical power supply mains.
It is furthermore recommended that the booklet "Safety Regulations" made available by Meccanica Fadini be examined thoroughly.
General Description: The Elpro 63 is a PCB card with microprocessor for the command and management of the Junior 633 and Junior 650 sliding
gate openers with programming for self-learning of the different movement phases of the gate.
Power Supply 230V 50Hz±10% mono phase. Corresponding to the BT 73/23/CEE - 93/68/EEC safety regulations for low voltage and the EMC 89/336/EEC
- 92/31/EEC Electromagnetic Compatibility Regulations.
Logic operation: given the Open command impulse, it performs the function for open-pause-close in automatic or semi-automatic with programmable
slow down, possibility of step by step radio command, radio no reverse on opening, with or without pre-flashing, exclusion of closing slow down,
reverse run upon contact with an obstacle and LED diagnostics, Dipswitch definition of the Right-Hand and Left-Hand installations, Blue/Amber lamp
on the casing cover for the signalling of the gate opener status.
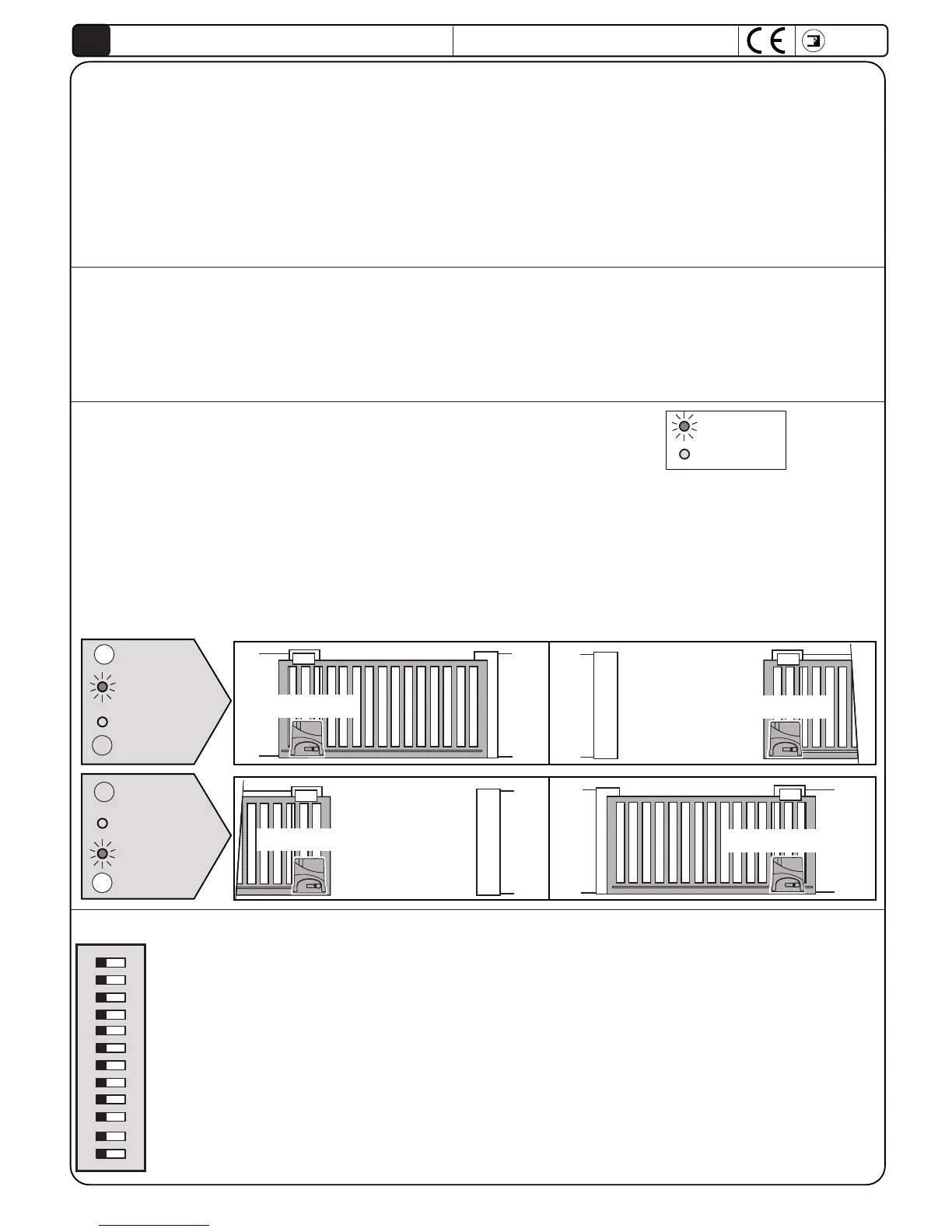
DIP-SWITCH: enables the performance of all of the possible functions of the Junior 633 and Junior 650 sliding gate openers
LED off
LED on
123456789101112
ONOFF
meccanica
FADINI
Elpro 63
GB
1 = OFF : Photocell not stopped in opening
2 = OFF: Radio in opening stops and reverses
3 = OFF:Semiautomatic operation
4 = OFF:Without pre-reflashing before opening
5 = OFF:Radio reverses direction on every impulse
6 = OFF:Slowdowns ( to be programmed)
7 = OFF: Activates "Reverse": reversed the running upon contact
8 = OFF:Flasher on in pause
9 = OFF:No closing after passage by the photocell
10 = OFF:No DSA cotrol on the phtocells
11 = OFF:Junior 633/ Junior 650 installed on the left
12 =OFF:Single Elpro 63, or the 1st Junior 633/650 MASTER
ON:Photocell stopped in opening
ON:Radio does not reverse ( and does not stop) in opening
ON:Close in automatic after pause time
ON:Pre-flashing before opening
ON:Radio switch: open-stop-close-stop
ON: Eliminates Slowdowns
ON:No reverse direction on contact
ON:Flasher off in pause
ON:Closing after passage by the photocell
ON: Check DSA Photocell before start up
ON: Junior 633/ Junior 650 installed on the right
ON: Elpro 63 SLAVE of the 2nd Junior 633/Junior 650
Junior 633 - Junior 650
DIAGNOSTIC LED: LED status during proper operation of the system
L2 (on)= Photocells, turns off with obstacle present
L4 (off)= Open, lights up with the opening command impulse
L5 (on)= Close, lights up with the opening command impulse
L6 (on)= Stop, goes off with the stop command impulse
L7 (off)= Radio, lights up with each transmitter impulse
L10 (off)= Light up in case of short 24 Vcc. Light off when take off the short
L20 (off)= Pedestrian, lights up with the open for pedestrian switch
L21 (on)= Photocell in open, turn off with present obstacle
L22 (on)= Enter of 2° Junior
LP (off) = Led of program, light on in phase of programming
X = led limit switch, always light on during the movement
Y = led limit switch, always light on during the movement
Junior LEFT
Junior RIGHT
X
Y
LED X on
LED Y on
X
Y
Junior LEFT
Junior RIGHT

Related product manuals