EasyManua.ls Logo

Fagor DDS XPS-65 - Block Diagram

Fagor DDS XPS-65
406 pages
Print Icon
To Next Page IconTo Next Page
To Next Page IconTo Next Page
To Previous Page IconTo Previous Page
To Previous Page IconTo Previous Page
Loading...
Power supplies
2.
94
Ref.1912
DDS
HARDWARE
· 74 ·
Block diagram
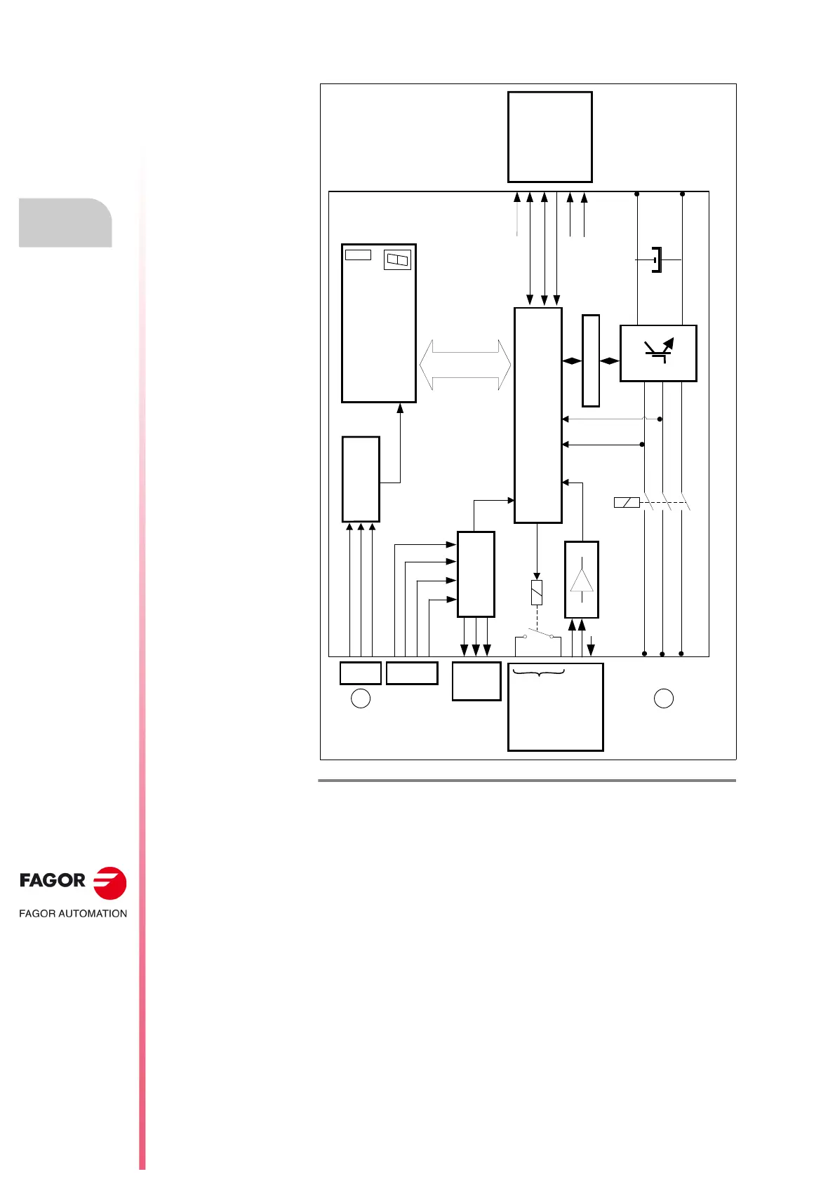
F. H2/34
Regenerative regulated power supplies, RPS-XX. Block diagram.





















 !"## !$%&!'!'!$ !()!%((#*$)!%#"
+
,
-.//0/.

 !"#








$!$%&((

Table of Contents

Related product manuals