EasyManua.ls Logo

Fagor LVF63ITB - Page 119

Fagor LVF63ITB
230 pages
Print Icon
To Next Page IconTo Next Page
To Next Page IconTo Next Page
To Previous Page IconTo Previous Page
To Previous Page IconTo Previous Page
Loading...
Schéma 2
Espace minimum nécessaire quand
la porte est ouverte.
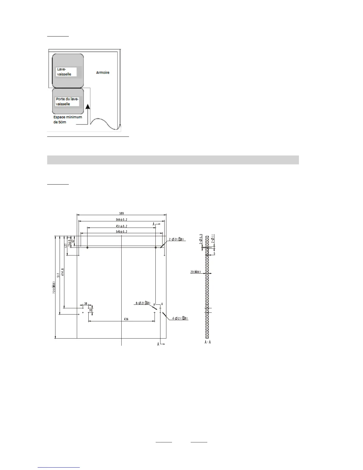
Panneaux décoratifs dimensions et installation .
1 le panneau décoratif doit être installé comme indiqué sur le schéma 3
Schéma 3
Le raccordement des panneaux décoratifs
doit se faire selon les dimensions illustrés
sur le schéma.
(Unité: mm)
2 Installer les crochets sur le panneau de bois et incérer les crochets dans les fentes prévues à cette effet sur la porte du
extérieur du lave-vaisselle (voir schéma 4a)
Après le possitionnement du panneau fixer celui-ci sur la porte extérieure avec les vises et écrous prévus à
cet effet. (voir schéma 4b)
17

Table of Contents

Related product manuals