EasyManua.ls Logo

Fagor LVF63ITB - Page 152

Fagor LVF63ITB
230 pages
To Next Page IconTo Next Page
To Next Page IconTo Next Page
To Previous Page IconTo Previous Page
To Previous Page IconTo Previous Page
Loading...
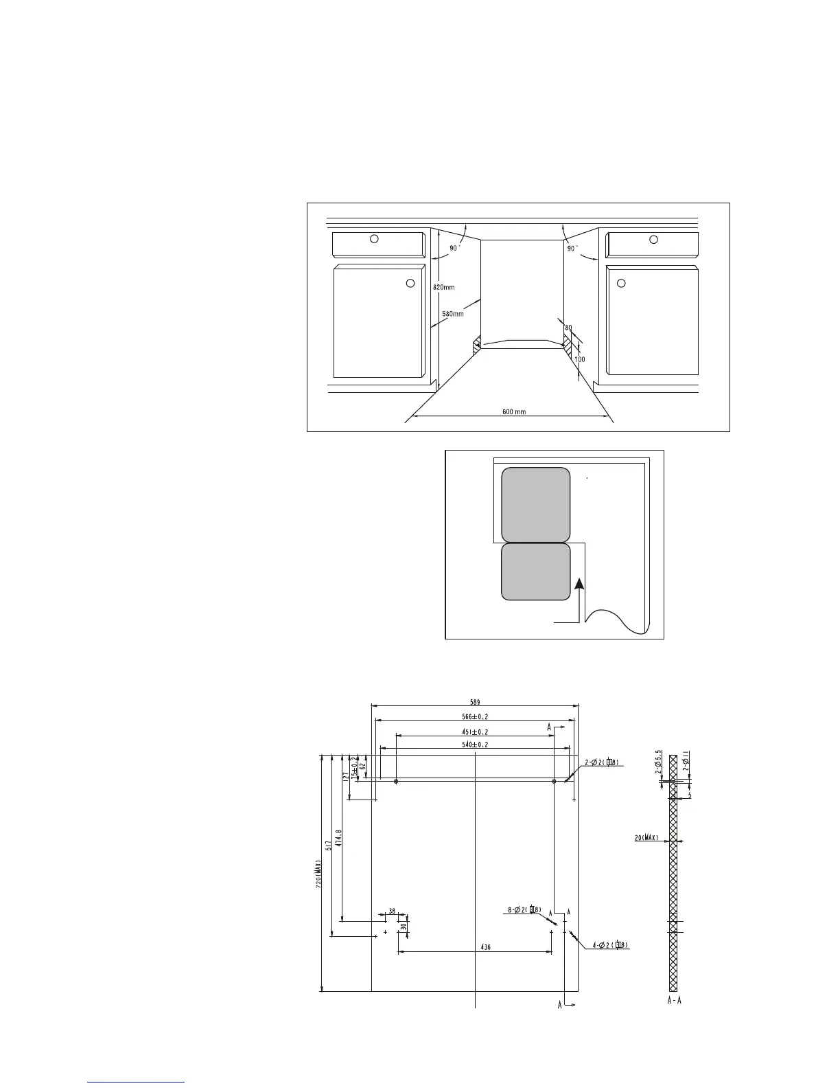
Kérjük, figyelmesen olvassa a telepítésre vonatkozó utasításokat.
A konyhabútor és a mosogatógép helyes elhelyezéséhez szükséges méretek illusztrációja.
Az előkészületeket még azelőtt el kell végezni, hogy a mosogatógépet a helyére teszi.
1.A mosogatógép be- és kifolyócsöve felszerelésének megkönnyítésére válasszon a mosogatóhoz közel eső helyet.
(lásd 1. ábra)
2.Ha a mosogatógépet a konyhaszekrény sarkában telepíti, elegendő helyet kell biztosítani az ajtó nyitásához.
(lásd 2. ábra)
[1. ábra]
A bútor méretei: a bútorlap alja
és a mosogagép teteje közötti
volság legfeljebb 5 mm lehet.
A gép ajtajának a bútor síkjába
kell esnie.
Elektromos vezetékek
zcsövek
bemeneti nyílása
A padló és a szekrény alsó
része közötti távolság
[2. ábra]
Minimum távolság nyitott
ajtól
A díszpanel méretei és felszerelése
1.A díszpanel a 3. ábrántható módon alakítható.
[3. ábra]
A díszpanelt az ábrán
tható méretek
figyelembe vételével kell
felszerelni.
(Mértékegység: mm)
és
Mosogatógép
Konyhaszekrény
A mosogatógép
ajtaja
Minimumtávolság: 50 mm
16

Table of Contents

Related product manuals