EasyManua.ls Logo

Fairchild T6000 - Page 2

Fairchild T6000
4 pages
Print Icon
To Next Page IconTo Next Page
To Next Page IconTo Next Page
To Previous Page IconTo Previous Page
To Previous Page IconTo Previous Page
Loading...
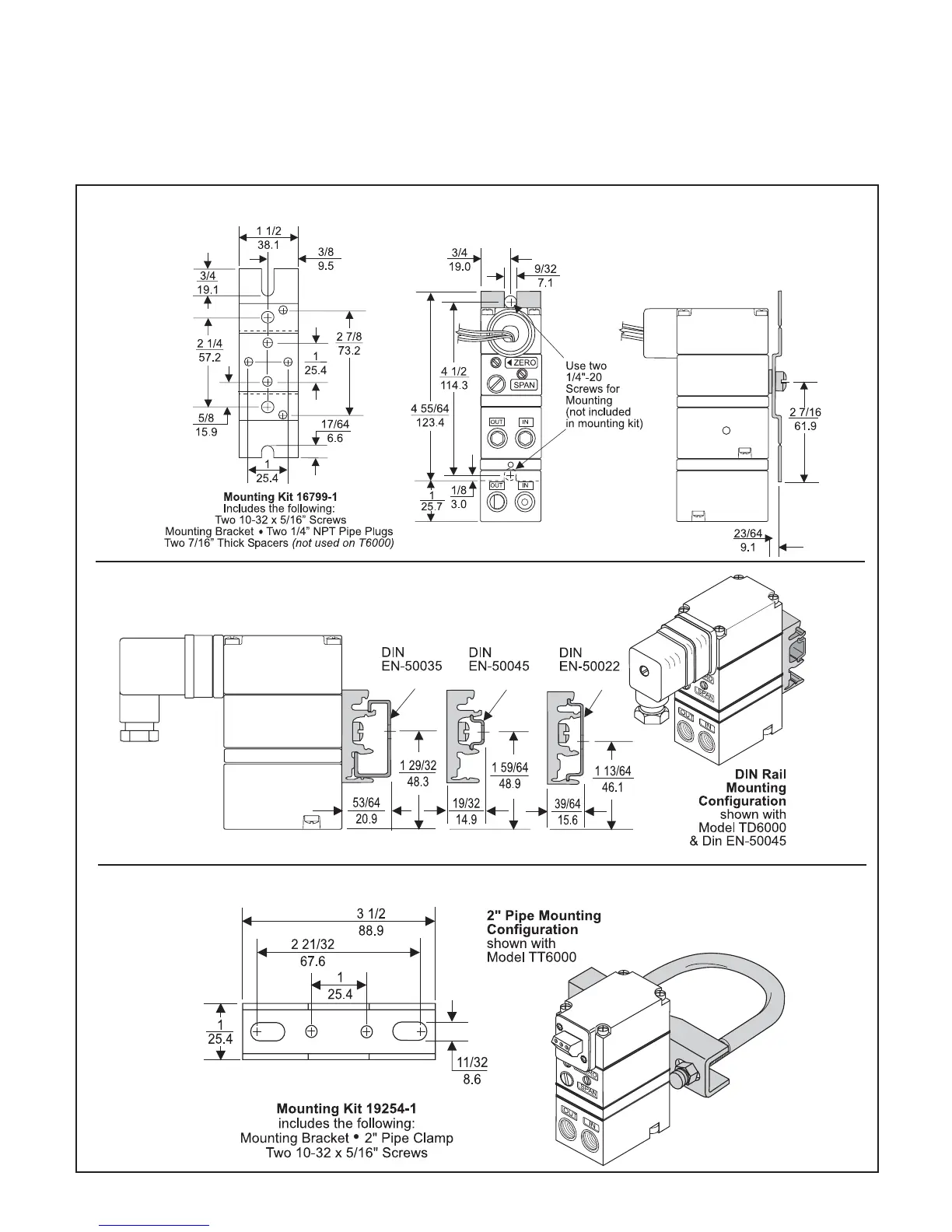
Installation
The Model T6000 is supplied with a DIN Rail Mounting Kit
16893. For detailed information, see Figure 6. A
Mounting Kit 19254-1 is available when installing the unit
on a 2" pipe, see Figure 7.
Figure 5. Mounting Kit 16799-1 (Included with Unit)
NOTE: The TR6000 Transducer is designed for use with
the TR Rack Kit. Physically, it is the same as the TT6000
(Terminal Block) Unit except that the terminal block has
been rotated to the rear. For detailed information, see
Figure 4. “TR6000 Outline Dimensions” on page 1.
Figure 6. DIN Rail Mounting Kit 16893 (Included with Unit)
Figure 7. Mounting Kit 19254-1 (Sold Separately)
2

Other manuals for Fairchild T6000

Related product manuals