EasyManua.ls Logo

F&F WZE-1 - Connection Diagram

F&F WZE-1
8 pages
Print Icon
To Next Page IconTo Next Page
To Next Page IconTo Next Page
To Previous Page IconTo Previous Page
To Previous Page IconTo Previous Page
Loading...
- 5 -
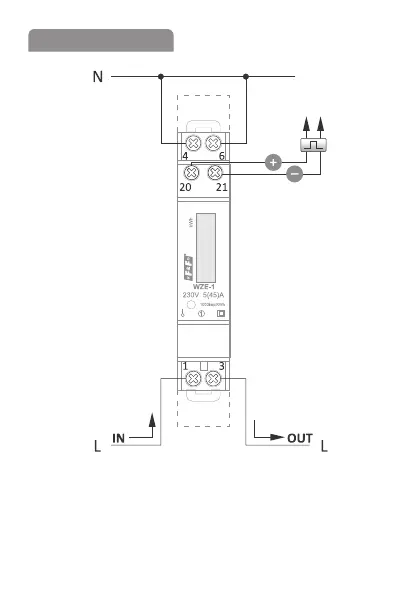
1 phase wire – power supply
3 phase wire – output
4, 6 neutral wire
20 pulse output (+)
21 pulse output (–)
Connection diagram

Related product manuals