EasyManua.ls Logo

Felder AD 951 - 8.2 Planing Fence and Machine Retooling

Felder AD 951
72 pages
Print Icon
To Next Page IconTo Next Page
To Next Page IconTo Next Page
To Previous Page IconTo Previous Page
To Previous Page IconTo Previous Page
Loading...
33
%
240 mm
"
"
#
#
!
!
"
#
!
$
A 941 / AD 941
AD 951
Planer-Thicknesser
A 941 / AD 941 / AD 951
8.4 Adjusting the planing fence
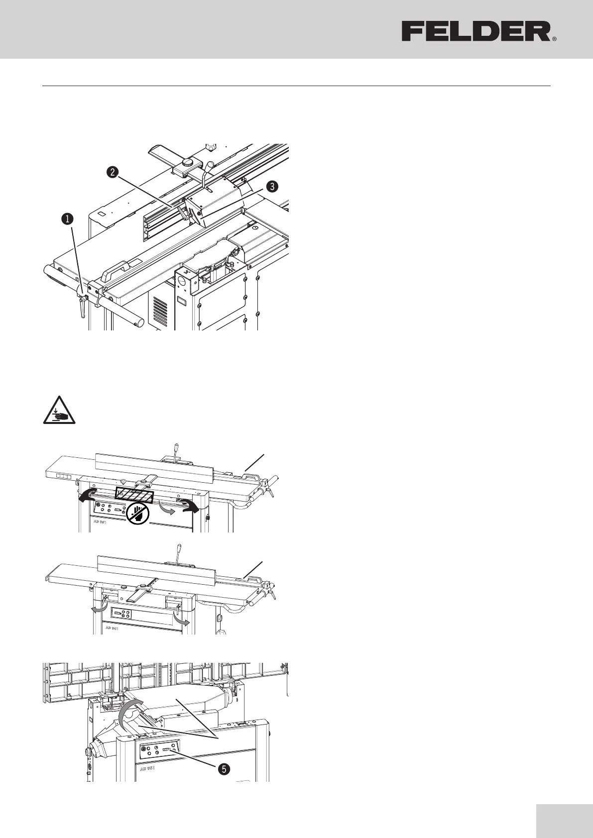
!Cam lever
"Clamping lever
#Scale
Fig. 8-4: Fence for guiding the workpiece
Your machine is equipped with a fence for guiding the
workpiece.
The fence can be pivoted from 90° to 45°.
Open clamping lever.
Set the required angle (Scale).
Close all clamping levers.
Sliding, clamping, remounting
Open cam lever and move fence.
8.5 Retooling from a planer to a thicknesser
Fig. 8-5: Planer table
Proceed in reverse order when closing the joiner tables.
Ensure that the planing table is at least 240 mm below
the planing arbor.
Fig. 8-6: Thicknesser table
$Vacuum hood
%Digital display on rip fence
Clamp the joiner fence
(see adhesive on stop).
AD 951
To unlock move the lever upwards.
danger of trapping!
A 941 / AD 941
Loosen and pull out the clamping lever.
Pivot joiner tables up
Pivot the exhaust hood up
!Glue
"Pull the lever forwards
#Release the clamping lever
Attention! danger of trapping!
Making adjustments and preparations

Table of Contents

Related product manuals