EasyManua.ls Logo

Felder RL 350 - Technical Specifications; 4.1 Dimensions and Weight

Felder RL 350
48 pages
Print Icon
To Next Page IconTo Next Page
To Next Page IconTo Next Page
To Previous Page IconTo Previous Page
To Previous Page IconTo Previous Page
Loading...
14
2257
1309,6567,25
1134,5
1149,3
1163,006
2636,5
2272,8
725
ø - mm
A
A1
A2
C
C2
1310
ø - mm
min. 200 mm
Option: 245 mm
570
B
B2
Dust Extractor
RL 250 / RL 300 / RL 350
Basic extractor
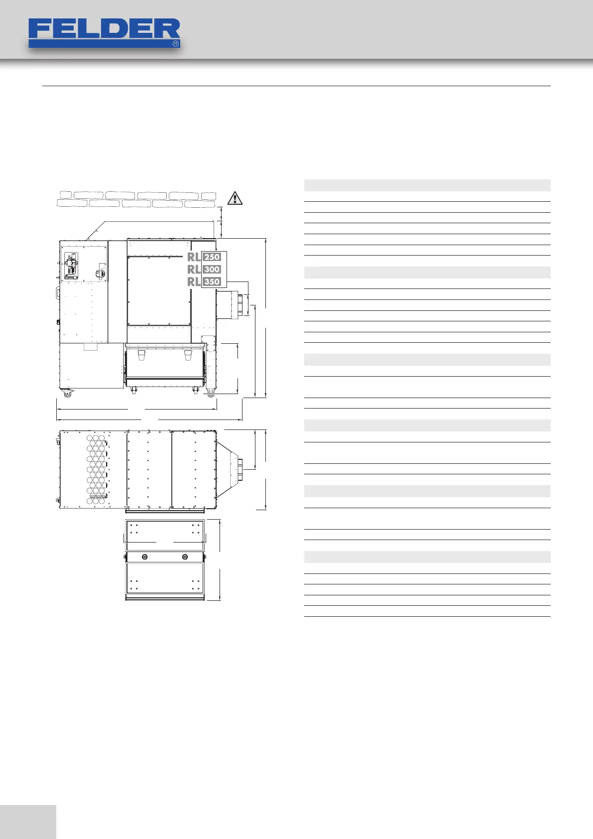
Total length (A) 2275 mm
Total length (A1) 2640 mm
Overall width (B) 1140 mm
Total height (C) 2260 mm
Weight RL 250 / RL 300 785 kg
Weight RL 350 825 kg
Chip container
Total length (A2) 1165 mm
Overall width (B2) 1150 mm
Total height (C2) 725 mm
Bag volume 2 x 250 litres
Motor power see data plate
RL 250
Filter surface 50 m²
Air-to-cloth ratio
(for nominal air flow rate) 71 m³/m²xh
Extractor supports- ø 250 mm
RL 300
Filter surface 50 m²
Air-to-cloth ratio
(for nominal air flow rate) 102 m³/m²xh
Extractor supports- ø 300 mm
RL 350
Filter surface 71,3 m²
Air-to-cloth ratio
(for nominal air flow rate) 98 m³/m²xh
Extractor supports- ø 350 mm
RL 250 / RL 300 / RL 350
Pneumatic connection 7–12 bar
Air consumption 40 Nl/min
Polyester drum filter Category „M“
Dust emission quality (mg/m³) <0,1*
Noise emission max. 75 dB (A)**
4.1 Dimensions and weight
Fig. 4-1: Overview
4 Technical specifications
The dust inspection applies to beech wood dust, with the fol-
lowing specifications:
Approx. median value 100 µm , 20 µm ≤ d
90
≤ 300 µm
Wood moisture 8 % ± 2 %
The metered beech wood dust concentration amounts to 5
g/m³ of air.
4.1.2 Important information
Specifications
* H3-certification with 0.1mg/m³ passed well within tolerance,
(wood dust)
** An allowance must be made to compensate for tolerances
with the specified emission values. K= 4 dB (A).
The measurement results are in accordence to prEN 16770
(See chapter entitled > Noise emission< )

Table of Contents

Related product manuals