EasyManua.ls Logo

Felder RL 350 - Chip Container (Standardaus Equipment); Mirror-Inverted Operation

Felder RL 350
48 pages
Print Icon
To Next Page IconTo Next Page
To Next Page IconTo Next Page
To Previous Page IconTo Previous Page
To Previous Page IconTo Previous Page
Loading...
22
180˚
180˚
!
"
! "
#
#
$
%
% %
& &
$ $
"
!
!
"
#
M10 x 25 M10 x 25M10 x 16
Dust Extractor
RL 250 / RL 300 / RL 350
6.2.2 Chip container (Standardaus equipment)
Fig. 6-2.2: Mirror-inverted operation
6.2.3 Mirror-inverted operation
The dust collecting container can be pushed under the
extractor from the other side if there is a shortage of
space.
Screw the supporting bracket, rotated by 180°, onto the
opposite side of the machine.
Screw the stop plate, also rotated by 180°, onto the front
side of the machine.
!Supporting bracket 1
"Supporting bracket 2
#Stop plate
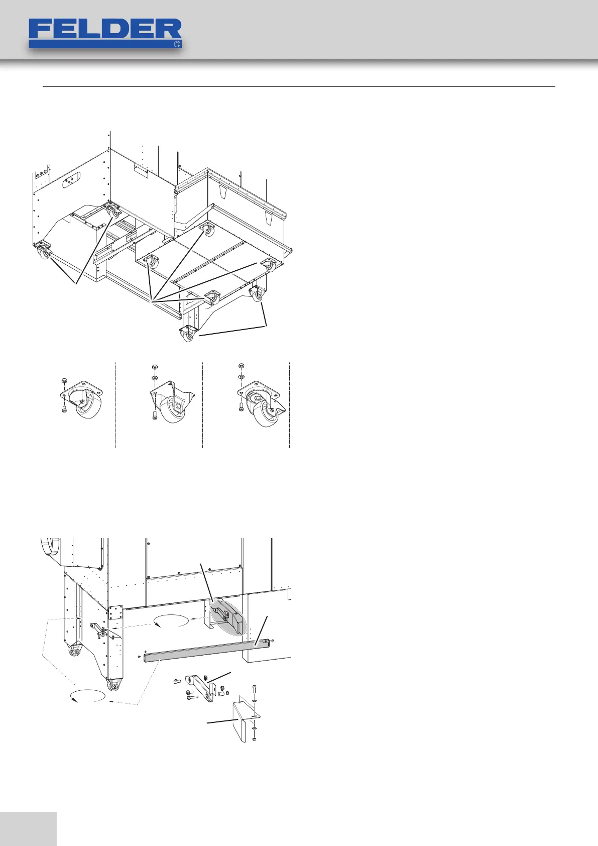
Setup and installation
Before you can work with your dust extractor, you must
screw the wheels to the chip container and the base
unit.
The chip container is equipped with 4 steering rollers.
Screw the steering roller to the chip container using the
supplied screws and nuts.
The base unit is equipped with 2 steering rollers and 2
fixed rollers. Screw both steering rollers and both fixed
rollers to the base unit using the supplied screws and
nuts.
Fig. 6-2.1: Steering rollers / Fixed rollers
!Steering rollers (Chip container)
"Fixed rollers
#Steering rollers (with brake)
$Screws
%Nuts
&Shims

Table of Contents

Related product manuals