EasyManua.ls Logo

Fermax 5293 - Programming Procedures; Entering Program Mode; Interlocked Operation Modes; Exiting Programming

Fermax 5293
Print Icon
To Previous Page IconTo Previous Page
To Previous Page IconTo Previous Page
Loading...
Cod. 970030 V04_20
21
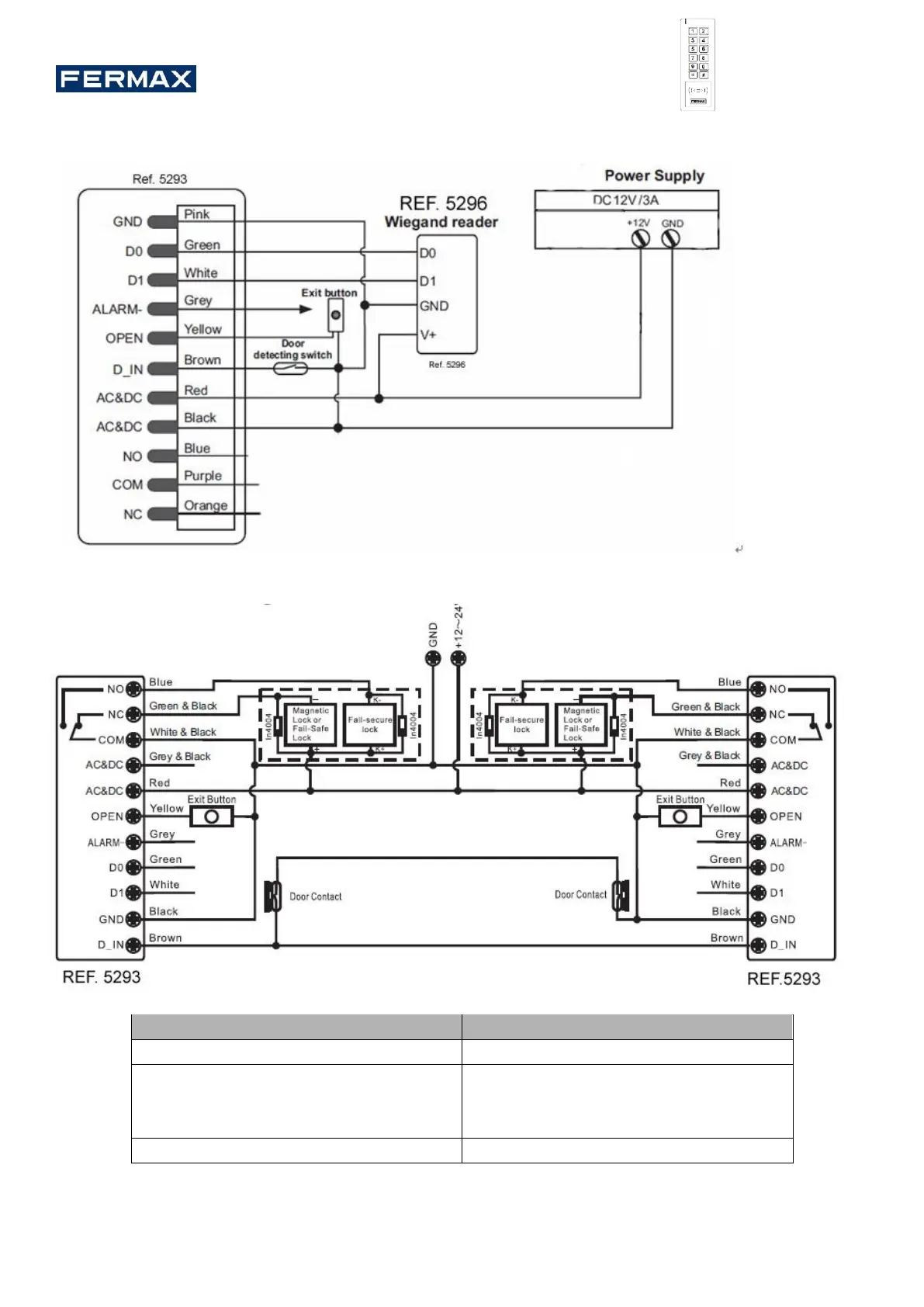
Conexión / Connections / Connexion / Anschluss / Ligação / 󰏼󰈓󰌰󰈰󰈉 / (5293+5296) 12Vcc_12dc
Conexión / Connections / Connexion / Anschluss / Ligão /  / (5293+5293) Interlocked.
Programming Step
Keystroke Combination
1. Enter Program Mode
* (Master Code) #
2. Interlocked-OFF
OR
2. Interlocked-ON
9 0 # (factory default)
9 1 #
3. Exit
*

Related product manuals