EasyManua.ls Logo

Fermax SMILE - Page 17

Fermax SMILE
Print Icon
To Next Page IconTo Next Page
To Next Page IconTo Next Page
To Previous Page IconTo Previous Page
To Previous Page IconTo Previous Page
Loading...
VDS VIDEO-SET CITYLINE 1-2 L SMILE 5
VDS
NO
NC
C
ALIMENTACION
POWER SUPPLY
18 Vdc
-+
MONITOR TEST
CN7
VERSION
:
EXIT
LANGUAGE
IDIOMA
L
+
-
M
V
+12
C
NCNO
-
BS
S
18V
DC
DL2
JP2
B
D
A
C
E
ON
AV TRES CRUCES, 133
46017 VALENCIA - SPAIN
FERMAX ELECTRONICA, SAU
AMPLIFIER
-
AMPLIFICATEUR
VERSTÄRKER-AMPLIFICADOR
MIC
SPK
10
PAN & TILT
SLAVE
JP2
MASTER
VDS
DL2
-
+
-
Vac
18Vdc+12Vac
240V
~
~
OVERLOAD
ON
~~
12 Vac
+
OUTPUT
INPUT
100-240 V ; 1,2A
50-60 Hz
18 V ; 1.5
12 V ;
18 Vdc
12 Vac
L
+
-
COAX
12 Vac
+F2
T
+
A
L-F1 CT
VMMVMV
AUX
75 Ohm
10 KOhm
10 Kohm
EXIT
NO
NC
C
LANGUAGE
IDIOMA
L
+
-
M
V
+12
C
NCNO
-
BS
S
ALIMENTACION
POWER SUPPLY
18 Vdc
-+
18V
DC
MONITOR TEST
CN7
DL2
JP2
B
D
A
C
E
ON
AV TRES CRUCES, 133
46017 VALENCIA - SPAIN
FERMAX ELECTRONICA, SAU
AMPLIFIER
-
AMPLIFICATEUR
VERSTÄRKER-AMPLIFICADOR
MIC
SPK
10
PAN & TILT
SLAVE
JP2
MASTER
-
+
-
Vac
18Vdc+12Vac
240V
~
~
OVERLOAD
ON
~~
12 Vac
+
OUTPUT
INPUT
100-240 V ; 1,2A
50-60 Hz
18 V ; 1.5
12 V ;
18 Vdc
12 Vac
L
+
-
COAX
12 Vac
+F2
T
+
A
L-F1 CT
VMMVMV
AUX
+F2
T
+
A
L-F1 CT
VMMVMV
AUX
75 Ohm
10 KOhm
VERSION
:
VDS
DL2
10 Kohm
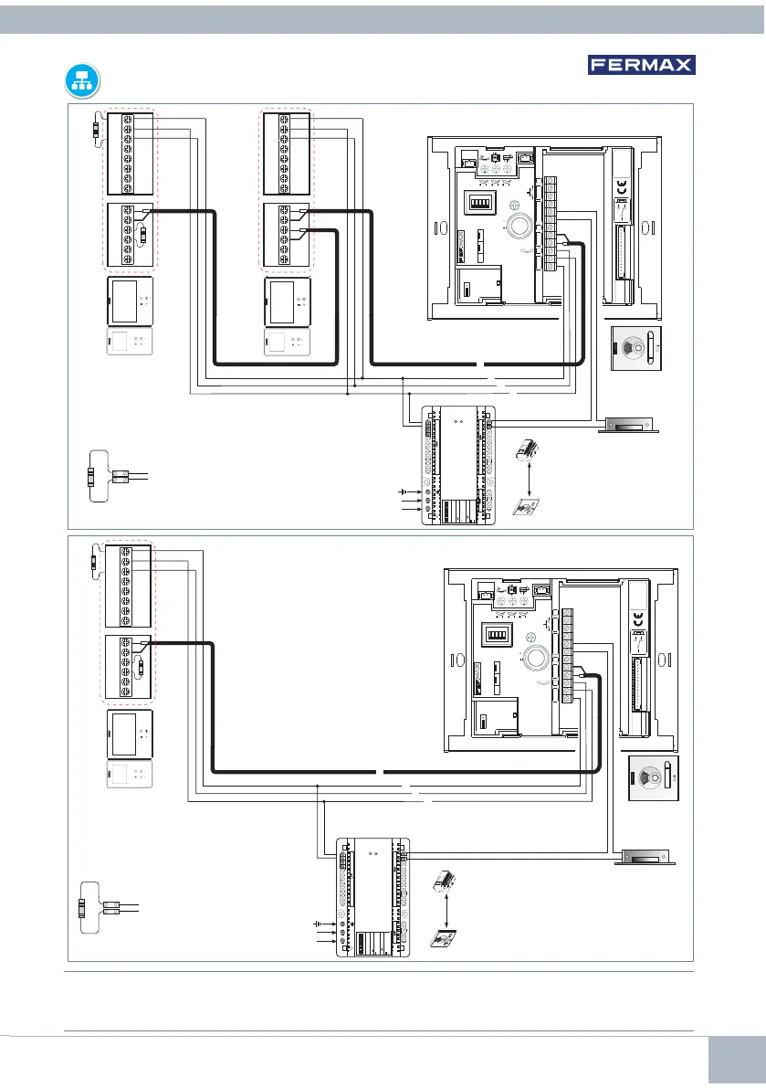
Hinweis: Dieses Dokument veranschaulicht die grundlegenden Konzepte für eine schnelle Inbetriebnahme der Anlage.
Weitere Information können Sie den Handbüchern auf www.fermax.com entnehmen.
- Türstationen Cityline Video VDS, Kode 97716.
- VDS Smile Monitor Kode 97711.
ANLAGE: 3 Drähte + Koaxial
VERKABELUNGSSCHEMA 2-LINIEN-SET
VERKABELUNGSSCHEMA 1-LINIEN-SET
+
1
8
V
1
.
5
A
5
0
-
6
0
H
z
.
5
0
V
A
M
A
X
.
1
2
V
1
A
F
U
E
N
T
E
A
L
I
M
E
N
T
A
C
I
O
N
K
I
T
D
I
G
I
T
A
L
MA
DE
I
N
S
P
A
I
N
D. max.
30 Meter
90 Fuß
+
1
8
V
1
.
5
A
5
0
-
6
0
H
z
.
5
0
V
A
M
A
X
.
1
2
V
1
A
F
U
E
N
T
E
A
L
I
M
E
N
T
A
C
I
O
N
K
I
T
D
I
G
I
T
A
L
M
A
D
E
I
N
S
P
A
I
N
D. max.
30 Meter
90 Fuß
10k Widerstand
zwischen den
Klemmen + und L
des letzten Monitors
10k Widerstand
zwischen den
Klemmen + und L
des letzten Monitors

Related product manuals