EasyManua.ls Logo

Fermax SMILE - Page 5

Fermax SMILE
Print Icon
To Next Page IconTo Next Page
To Next Page IconTo Next Page
To Previous Page IconTo Previous Page
To Previous Page IconTo Previous Page
Loading...
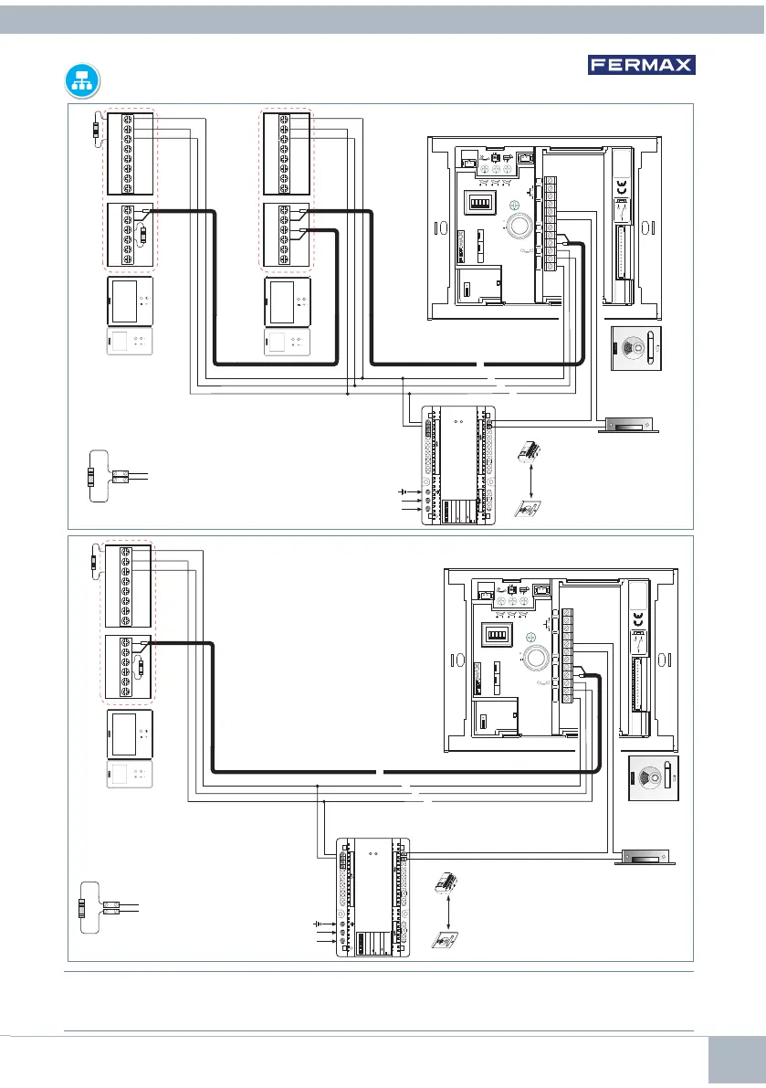
KIT VIDEO VDS CITYLINE 1-2 L SMILE 5
VDS
INSTALACIÓN: 3 hilos + coaxial
ESQUEMA CABLEADO KIT 1 LÍNEA
NO
NC
C
ALIMENTACION
POWER SUPPLY
18 Vdc
-+
MONITOR TEST
CN7
VERSION
:
EXIT
LANGUAGE
IDIOMA
L
+
-
M
V
+12
C
NCNO
-
BS
S
18V
DC
DL2
JP2
B
D
A
C
E
ON
AV TRES CRUCES, 133
46017 VALENCIA - SPAIN
FERMAX ELECTRONICA, SAU
AMPLIFIER
-
AMPLIFICATEUR
VERSTÄRKER-AMPLIFICADOR
MIC
SPK
10
PAN & TILT
SLAVE
JP2
MASTER
VDS
DL2
-
+
-
Vac
18Vdc+12Vac
240V
~
~
OVERLOAD
ON
~~
12 Vac
+
OUTPUT
INPUT
100-240 V ; 1,2A
50-60 Hz
18 V ; 1.5
12 V ;
18 Vdc
12 Vac
L
+
-
COAX
12 Vac
+F2
T
+
A
L-F1 CT
VMMVMV
AUX
75 Ohm
10 KOhm
10 Kohm
Resistencia 10K
entre los bornes + y L
del último monitor
+
1
8
V
1
.
5
A
5
0
-
6
0
H
z
.
5
0
V
A
M
A
X
.
1
2
V
1
A
F
U
E
N
T
E
A
L
I
M
E
N
T
A
C
I
O
N
K
I
T
D
I
G
I
T
A
L
M
A
D
E
IN
S
P
A
IN
D. max.
30 metros
90 pies
EXIT
NO
NC
C
LANGUAGE
IDIOMA
L
+
-
M
V
+12
C
NCNO
-
BS
S
ALIMENTACION
POWER SUPPLY
18 Vdc
-+
18V
DC
MONITOR TEST
CN7
DL2
JP2
B
D
A
C
E
ON
AV TRES CRUCES, 133
46017 VALENCIA - SPAIN
FERMAX ELECTRONICA, SAU
AMPLIFIER
-
AMPLIFICATEUR
VERSTÄRKER-AMPLIFICADOR
MIC
SPK
10
PAN & TILT
SLAVE
JP2
MASTER
-
+
-
Vac
18Vdc+12Vac
240V
~
~
OVERLOAD
ON
~~
12 Vac
+
OUTPUT
INPUT
100-240 V ; 1,2A
50-60 Hz
18 V ; 1.5
12 V ;
18 Vdc
12 Vac
L
+
-
COAX
12 Vac
+F2
T
+
A
L-F1 CT
VMMVMV
AUX
+F2
T
+
A
L-F1 CT
VMMVMV
AUX
75 Ohm
10 KOhm
VERSION
:
VDS
DL2
ESQUEMA CABLEADO KIT 2 LÍNEAS
+
1
8
V
1
.
5
A
5
0
-
6
0
H
z
.
5
0
V
A
M
A
X
.
1
2
V
1
A
F
U
E
N
T
E
A
L
I
M
E
N
T
A
C
I
O
N
K
I
T
D
I
G
I
T
A
L
M
A
D
E
I
N
S
P
A
I
N
D. max.
30 metros
90 pies
10 Kohm
Resistencia 10K
entre los bornes + y L
del último monitor
Nota: Este documento muestra los conceptos más básicos para la rápida puesta en marcha, para más información
descargar los manuales en www.fermax.com
- Placas Kit Cityline Video VDS cod. 97716.
- Monitor Smile VDS cod. 97711.

Related product manuals