EasyManua.ls Logo

Fermax SMILE - Page 9

Fermax SMILE
Print Icon
To Next Page IconTo Next Page
To Next Page IconTo Next Page
To Previous Page IconTo Previous Page
To Previous Page IconTo Previous Page
Loading...
VDS VIDEO KIT CITYLINE 1-2 L SMILE 5
VDS
NO
NC
C
ALIMENTACION
POWER SUPPLY
18 Vdc
-+
MONITOR TEST
CN7
VERSION
:
EXIT
LANGUAGE
IDIOMA
L
+
-
M
V
+12
C
NCNO
-
BS
S
18V
DC
DL2
JP2
B
D
A
C
E
ON
AV TRES CRUCES, 133
46017 VALENCIA - SPAIN
FERMAX ELECTRONICA, SAU
AMPLIFIER
-
AMPLIFICATEUR
VERSTÄRKER-AMPLIFICADOR
MIC
SPK
10
PAN & TILT
SLAVE
JP2
MASTER
VDS
DL2
-
+
-
Vac
18Vdc+12Vac
240V
~
~
OVERLOAD
ON
~~
12 Vac
+
OUTPUT
INPUT
100-240 V ; 1,2A
50-60 Hz
18 V ; 1.5
12 V ;
18 Vdc
12 Vac
L
+
-
COAX
12 Vac
+F2
T
+
A
L-F1 CT
VMMVMV
AUX
75 Ohm
10 KOhm
10 Kohm
EXIT
NO
NC
C
LANGUAGE
IDIOMA
L
+
-
M
V
+12
C
NCNO
-
BS
S
ALIMENTACION
POWER SUPPLY
18 Vdc
-+
18V
DC
MONITOR TEST
CN7
DL2
JP2
B
D
A
C
E
ON
AV TRES CRUCES, 133
46017 VALENCIA - SPAIN
FERMAX ELECTRONICA, SAU
AMPLIFIER
-
AMPLIFICATEUR
VERSTÄRKER-AMPLIFICADOR
MIC
SPK
10
PAN & TILT
SLAVE
JP2
MASTER
-
+
-
Vac
18Vdc+12Vac
240V
~
~
OVERLOAD
ON
~~
12 Vac
+
OUTPUT
INPUT
100-240 V ; 1,2A
50-60 Hz
18 V ; 1.5
12 V ;
18 Vdc
12 Vac
L
+
-
COAX
12 Vac
+F2
T
+
A
L-F1 CT
VMMVMV
AUX
+F2
T
+
A
L-F1 CT
VMMVMV
AUX
75 Ohm
10 KOhm
VERSION
:
VDS
DL2
10 Kohm
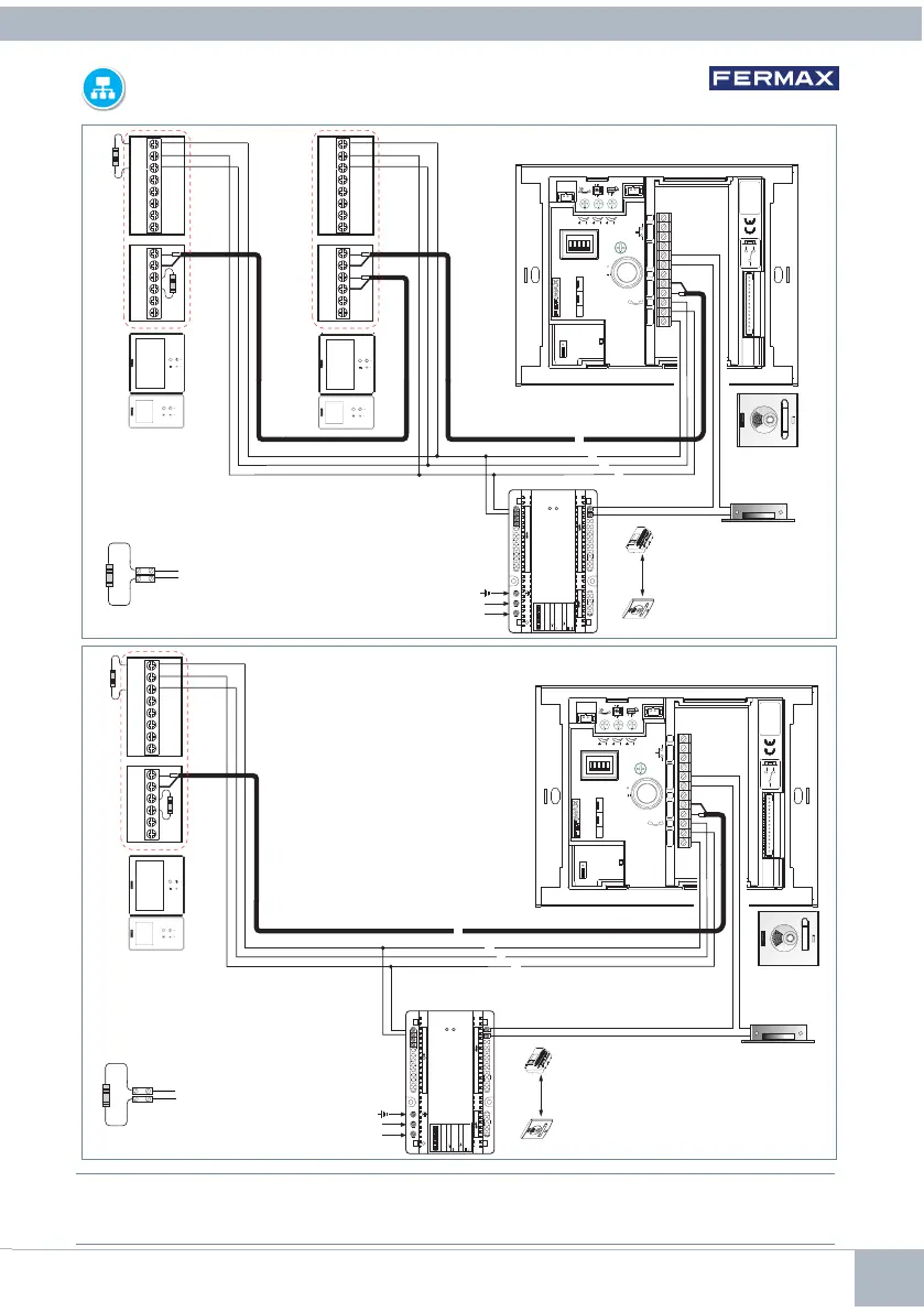
2 LINES WIRING DIAGRAM KIT
1 LINES WIRING DIAGRAM KIT
+
1
8
V
1
.
5
A
5
0
-
6
0
H
z
.
5
0
V
A
M
A
X
.
1
2
V
1
A
F
U
E
N
T
E
A
L
I
M
E
N
T
A
C
IO
N
K
I
T
D
I
G
I
T
A
L
M
A
D
E
I
N
S
P
A
I
N
D. max.
30 meters
90 feet
10K resistance
between terminals + and L
of the last monitor
+
1
8
V
1
.
5
A
5
0
-
6
0
H
z
.
5
0
V
A
M
A
X
.
1
2
V
1
A
F
U
E
N
T
E
A
L
I
M
E
N
T
A
C
I
O
N
K
I
T
D
I
G
I
T
A
L
M
A
D
E
I
N
S
P
A
I
N
D. max.
30 meters
90 feet
10K resistance
between terminals + and L
of the last monitor
Note: This document shows the basic concepts for a quick start-up. For more information download the manuals at www.
fermax.com
- Cityline Video VDS Kit Panels cod. 97716.
- VDS Smile Monitor cod. 97711.
INSTALLATION: 3 wires + coaxial

Related product manuals