EasyManua.ls Logo

Ferris 5900612 - Page 100

Ferris 5900612
104 pages
Print Icon
To Next Page IconTo Next Page
To Next Page IconTo Next Page
To Previous Page IconTo Previous Page
To Previous Page IconTo Previous Page
Loading...
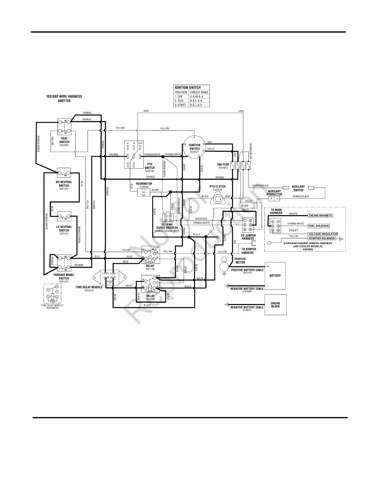
Electrical Schematic - Ignition Grounding/Operator Presence - Kawasaki 37HP
5301292I
The above parts group applies to the following Mfg. Nos.:
2010
100
© Copyright Briggs and Stratton. All Rights Reserved.
5900752
(
IS3100ZKAV3761SS
)
5900753
(
IS3100ZKAV37SS
)
TP 400-7282-BA-3Z-F
Not for
Reproduction

Table of Contents

Related product manuals