EasyManua.ls Logo

Ferris 5900612 - Electrical Schematics - Briggs & Stratton 30 HP & 32 HP

Ferris 5900612
104 pages
Print Icon
To Next Page IconTo Next Page
To Next Page IconTo Next Page
To Previous Page IconTo Previous Page
To Previous Page IconTo Previous Page
Loading...
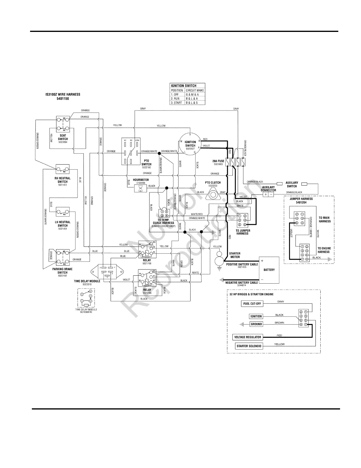
Electrical Schematic - Charging Circuit - Briggs & Stratton 30HP & 32HP
282esbc0
The above parts group applies to the following Mfg. Nos.:
2010
94
© Copyright Briggs and Stratton. All Rights Reserved.
5900716
(
IS3100ZBV30/61 AUS/NZ
)
5900717
(
IS3100ZBV32 AUS/NZ
)
5900736
(
IS3100ZBV3261 CAL
)
5901186
(
IS3100ZBV3061
)
5900613
(
IS3100ZBV3261
)
5901183
(
IS3100ZBV32
)
TP 400-7282-BA-3Z-F
Not for
Reproduction

Table of Contents

Related product manuals