EasyManua.ls Logo

Ferris 5900612 - Page 89

Ferris 5900612
104 pages
Print Icon
To Next Page IconTo Next Page
To Next Page IconTo Next Page
To Previous Page IconTo Previous Page
To Previous Page IconTo Previous Page
Loading...
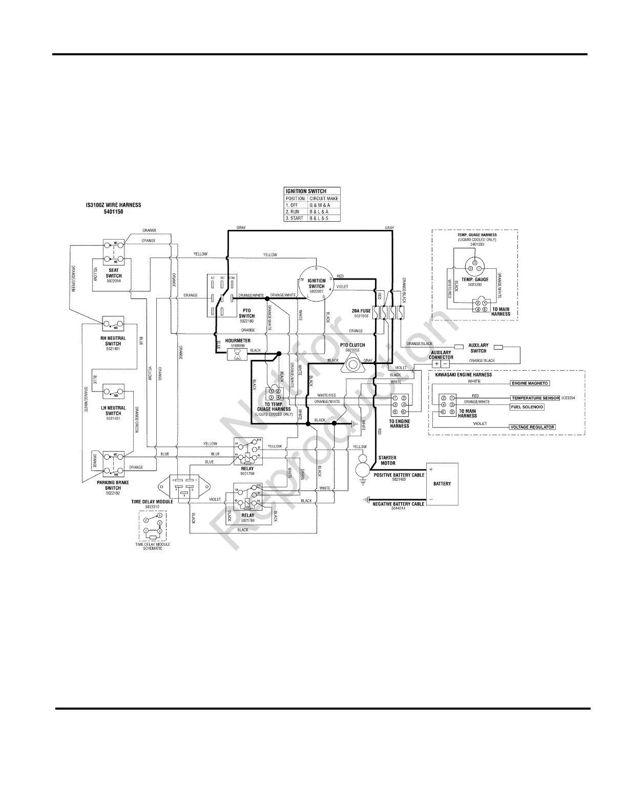
Electrical Schematic - PTO Clutch Circuit - Kawasaki 26HP LC
282eswp0
The above parts group applies to the following Mfg. Nos.:
2010
89
© Copyright Briggs and Stratton. All Rights Reserved.
5900611
(
IS3100ZLKAV2661
)
TP 400-7282-BA-3Z-F
Not for
Reproduction

Table of Contents

Related product manuals