EasyManua.ls Logo

Fetco CBS-2031ee - Page 5

Fetco CBS-2031ee
28 pages
Print Icon
To Next Page IconTo Next Page
To Next Page IconTo Next Page
To Previous Page IconTo Previous Page
To Previous Page IconTo Previous Page
Loading...
5
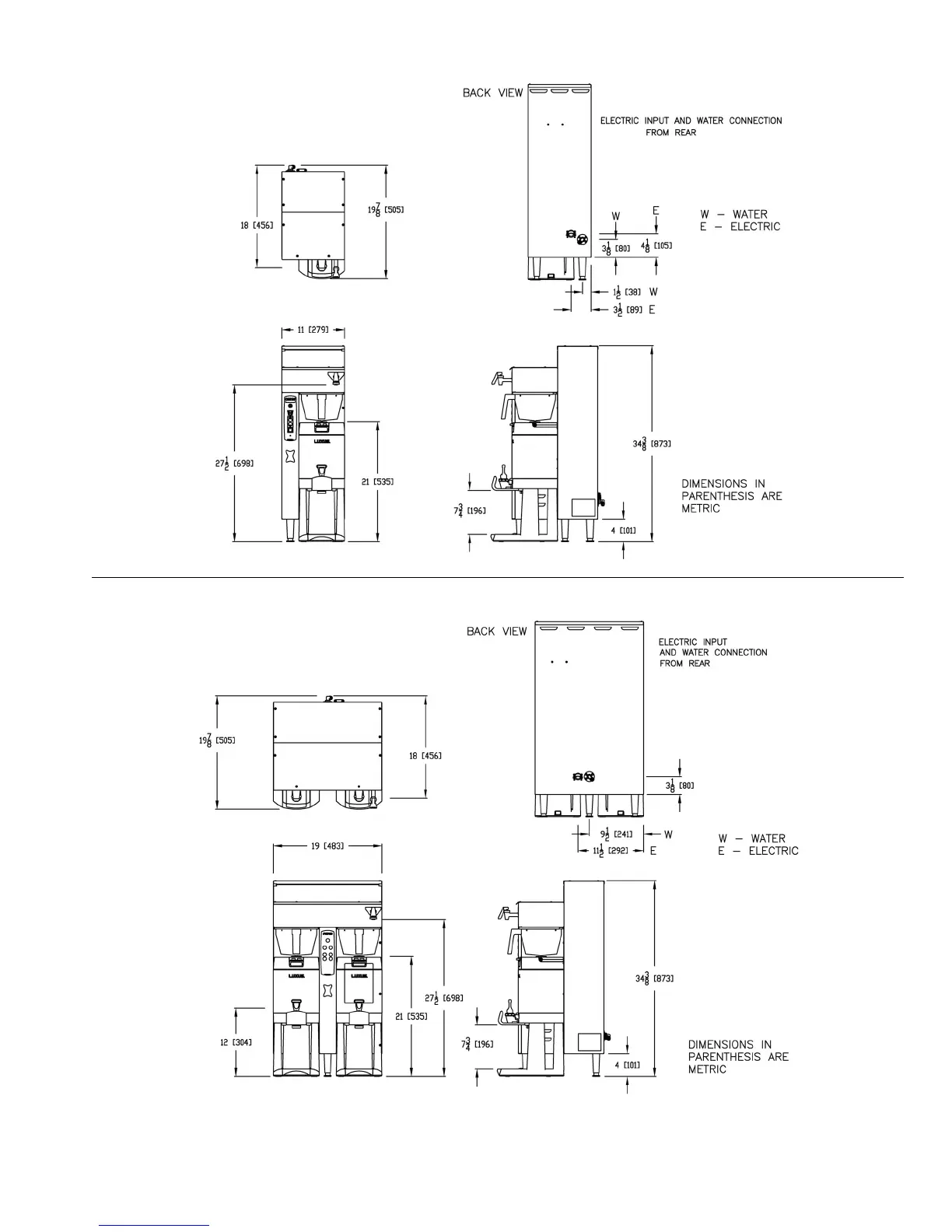
CBS-2041ee
DWG 201143-000
CBS-2042ee
DWG 201144-000

Related product manuals