EasyManua.ls Logo

Fetco CBS-2031ee - Dimensions & Utility Connections

Fetco CBS-2031ee
28 pages
Print Icon
To Next Page IconTo Next Page
To Next Page IconTo Next Page
To Previous Page IconTo Previous Page
To Previous Page IconTo Previous Page
Loading...
4
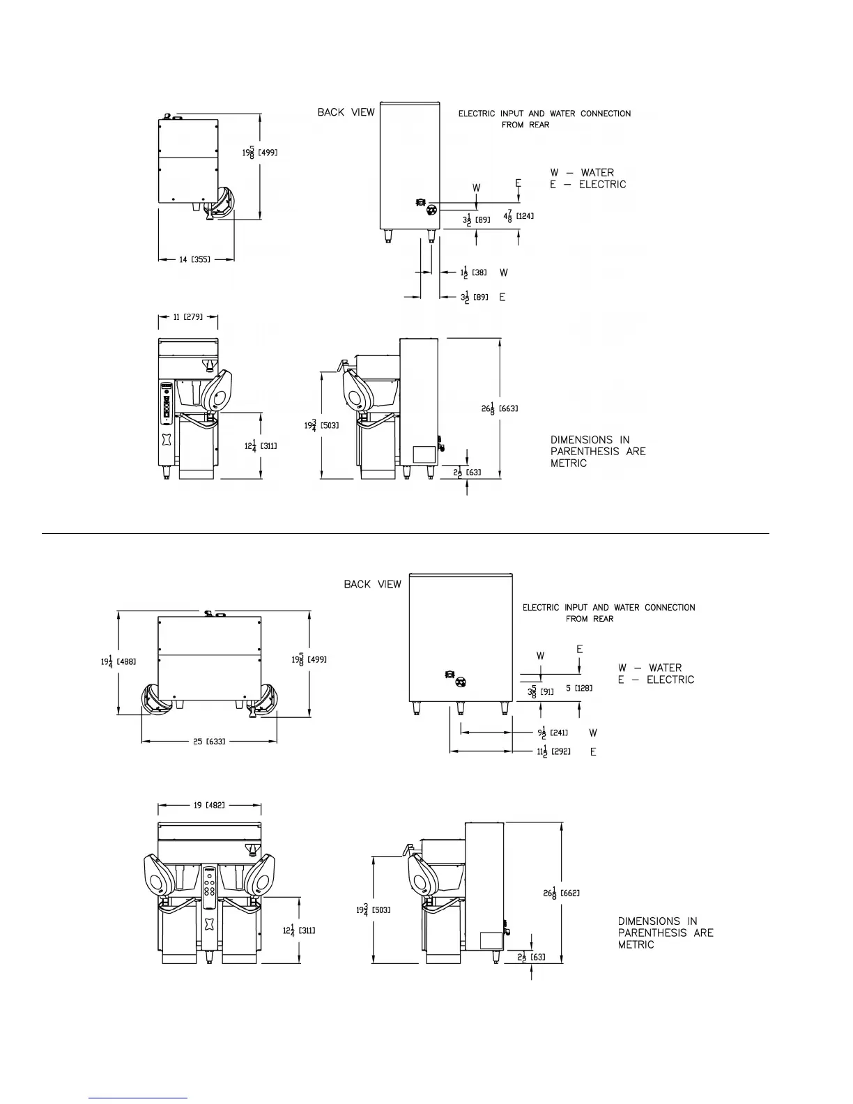
Dimensions & Utility Connections
CBS-2031ee
DWG 201141-000
CBS-2032ee
DWG 201142-000

Related product manuals