EasyManua.ls Logo

Fetco CBS-2041e - Dimensions & Utility Connections

Fetco CBS-2041e
22 pages
Print Icon
To Next Page IconTo Next Page
To Next Page IconTo Next Page
To Previous Page IconTo Previous Page
To Previous Page IconTo Previous Page
Loading...
4
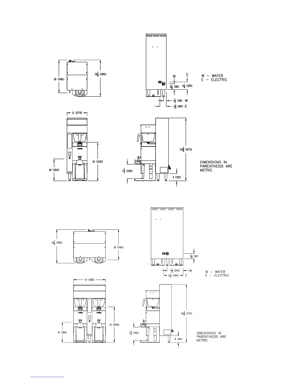
Dimensions & Utility Connections
CBS-2041e
DWG 201098-000
CBS-2042e
DWG 201099-000

Related product manuals