EasyManua.ls Logo

Fini ROTAR PLUS 25 - Operation; Start-Up &#X85

Default Icon
14 pages
Print Icon
To Next Page IconTo Next Page
To Next Page IconTo Next Page
To Previous Page IconTo Previous Page
To Previous Page IconTo Previous Page
Loading...
Rotar Plus 20-25 Easytronic - Cod.197AA2702 - Edition 00 01/2004
9
GB
6
1
2
3
4
5
6
7
8
9
10
11
12
13
14
15
16
OPERATION
START-UP
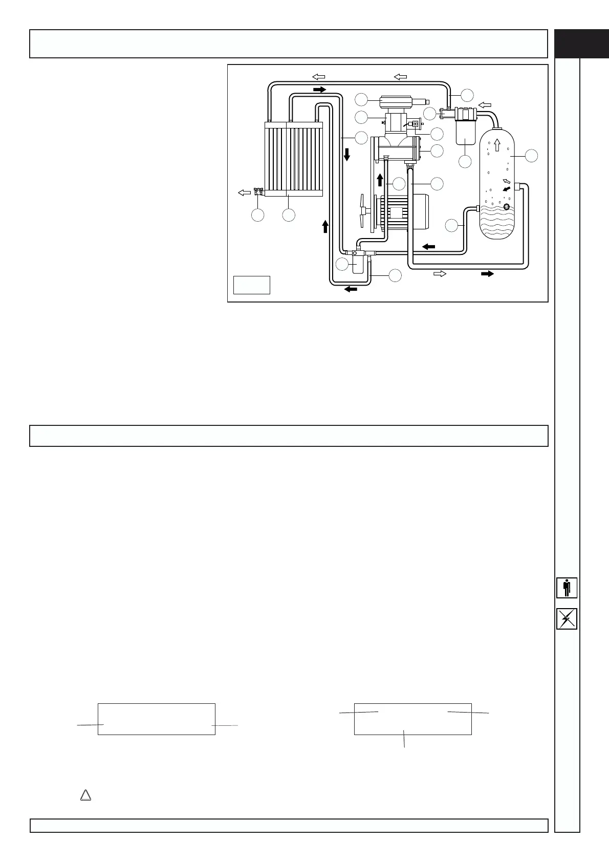
OPERATING CYCLE
At first start-up, the motor starts in the
star configuration. In this phase the compressor
starts slowly, the solenoid valve (1) is open and
the suction regulator (2) is closed.
The compressor remains in this condition
for about 5÷7 seconds
After this time, the motor is powered by
the delta configured circuit. The solenoid val-
ve (1) receives current and closes allowing the
opening of the suction regulator (2), which
intakes atmospheric air through the filter (3).
At this stage, the compressor runs at full
speed and begins to compress the air in the tank
(6).
The compressed air cannot come out
from the minimum pressure valve set at 3÷4 bar.
The compressed air compresses the oil
in the tank (6) and forces it to flow towards the
tube (7).
If the oil temperature is below 71°C the
oil from the tube (7) flows directly to the
compressor (4) through the tube (8) passing through the filter (9).
If the oil temperature exceeds 71°C the thermal expansion valve shuts down the ducting to tube (8) and oil flows to the
radiator (11) through the tube (10). Once cooled, oil flows back to the compressor through tubes (12) and (8) and filter (9).
The oil reaches the compressor (4) mixing with the intake air and creating an air/oil mixture which ensures the seal and the
lubrication of the moving parts of the compressor.
The air/oil mixture returns to the tank (6) where the air is pre-separated through spinning and is finally separated from the
oil by the oil separator filter (13).
From the tank (6) only air comes out, which reaches the radiator (11) through the tube (15) and the mains through the cut-
off cock (16).
FIRST START-UP
Before starting the machine up for the first time, make sure that:
the mains voltage is the same as the voltage on the CE plate;
the electric connections have been made using cables of proper cross-section;
the (wall) main power switch has suitable fuses;
the oil level is over the minimum level - top up with the same type of oil if necessary (Shell Corena D46);
the air outlet cock is completely open.
CONNECT THE TANK WITH A HOSE.
Only specialized technicians can start the compressor (on-site testing) for the first time.
If the machine does not start and the display shows the alarm message Wrong direction of rotation, proceed as
follows:
break power supply through the wall switch;
open the electric box door and reverse the two phases in the terminal board;
close the door, power on and start the machine.
Display status during compressor operation
Display status at start (shown for 5 seconds) Display status during normal operation
Easy Tronic II
V.0.0.0 GG/MM/AA
date
software
release
Press the key to see hours and minutes operation; the information is displayed for 20 seconds.
100°C 9.5Bar
Status=stand-by
oil temp.
pressure
compressor
status

Related product manuals