EasyManua.ls Logo

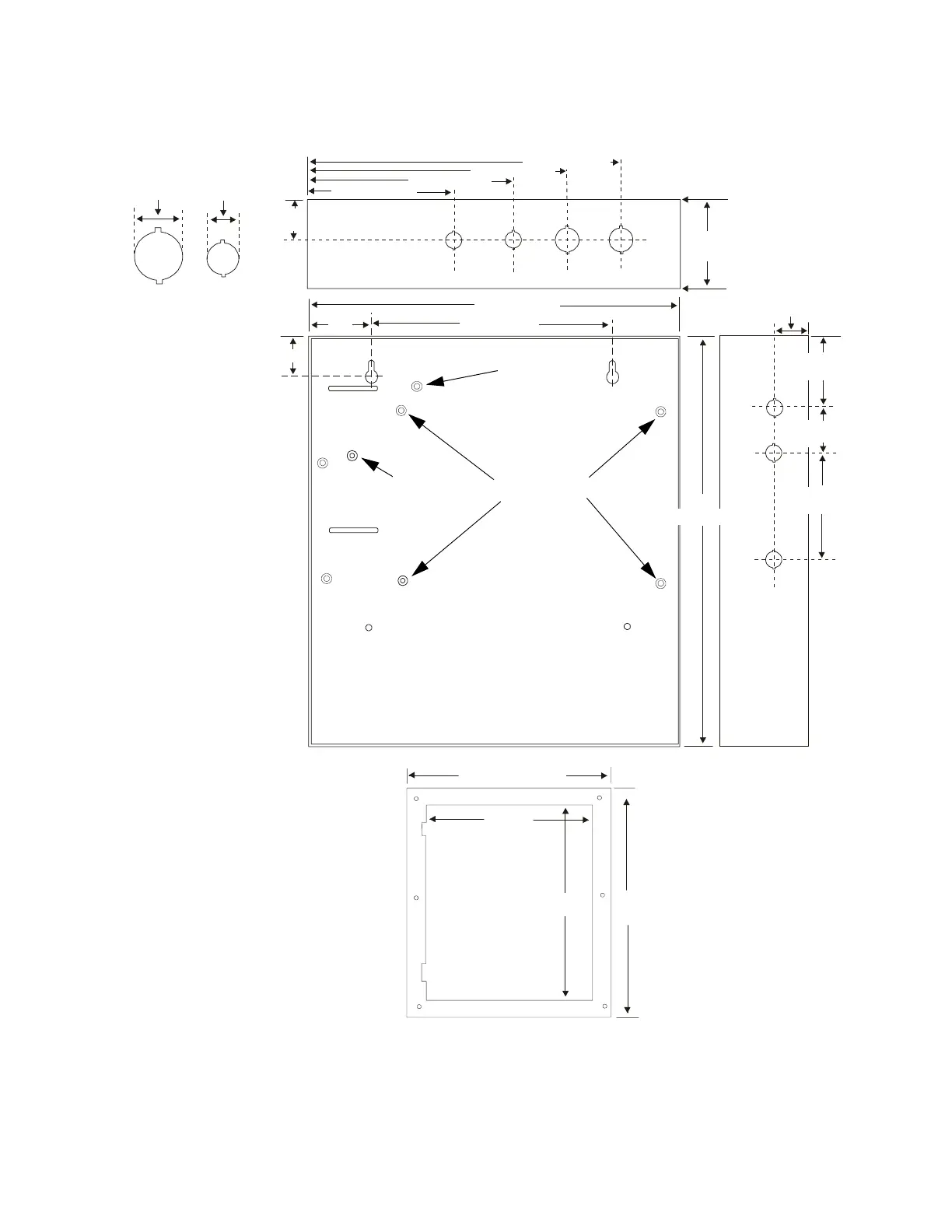
Fire-Lite 411UDAC - Cabinet Dimensions and Knockout Locations

Fire-Lite 411UDAC
88 pages
Print Icon
To Next Page IconTo Next Page
To Next Page IconTo Next Page
To Previous Page IconTo Previous Page
To Previous Page IconTo Previous Page
Loading...
411UDAC Document #51073 Rev. D 12/09/2008 P/N 51073:D 19
Mounting
12.625"
(32.068 cm)
14.625“ (37.148 cm)
16.625" (42.228 cm)
17.625"
(44.768 cm)
2.875“
(7.303 cm)
1.25“
(3.175 cm)
1.25“
(3.175 cm)
1.125“
(2.858 cm)
0.875“
(2.223 cm)
14.5“
(36.83 cm)
3.25“
(8.255 cm)
1.75“
(4.445 cm)
3.5“
(8.89 cm)
12.5“ (31.75 cm)
4.12“ (10.47 cm)
6.12“ (15.55 cm)
8.12“ (20.63 cm)
10.12“ (25.75 cm)
1.1“ (2.794 cm)
6.5“ (16.51 cm)
(7.62 cm)
3.0“
FIGURE 2-2:Cabinet Dimensions and Knockout Locations
5024JRBB.CDR
Main Circuit Board
Mounting Studs
Transformer
Mounting
Stud
Ground
Stud
Single
Transformer
Mounting
Slot
Double
Transformer
Mounting
Slot
Knockouts
Top (back)
Top (front)
TR-3-R Trim Ring

Table of Contents

Related product manuals