EasyManua.ls Logo

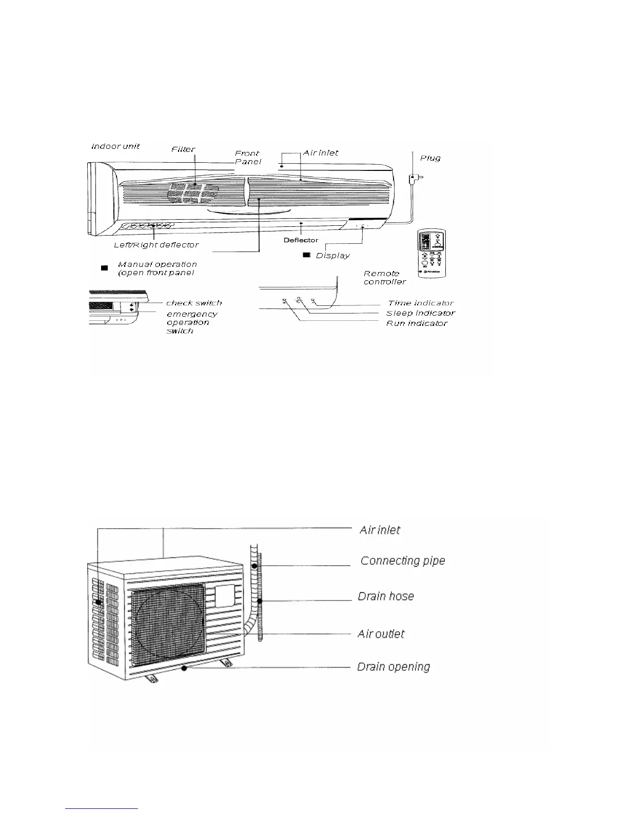
Firstline FCS12000CH - Component Identification; Indoor Unit Parts; Outdoor Unit Parts

Default Icon
15 pages
Print Icon
To Next Page IconTo Next Page
To Next Page IconTo Next Page
To Previous Page IconTo Previous Page
To Previous Page IconTo Previous Page
Loading...
SelectAirCon.com
Tel 647171531 or
966719362
Page 5 of 15
Name of Parts
Outdoor Unit