EasyManua.ls Logo

FläktGroup ACJB - Dimensions and Weight

FläktGroup ACJB
16 pages
Print Icon
To Next Page IconTo Next Page
To Next Page IconTo Next Page
To Previous Page IconTo Previous Page
To Previous Page IconTo Previous Page
Loading...
Air Heating unit ACJB - Technical manual
7
FläktGroup DC_9170GB_20190117_R2
We reserve the right to make changes without prior notice
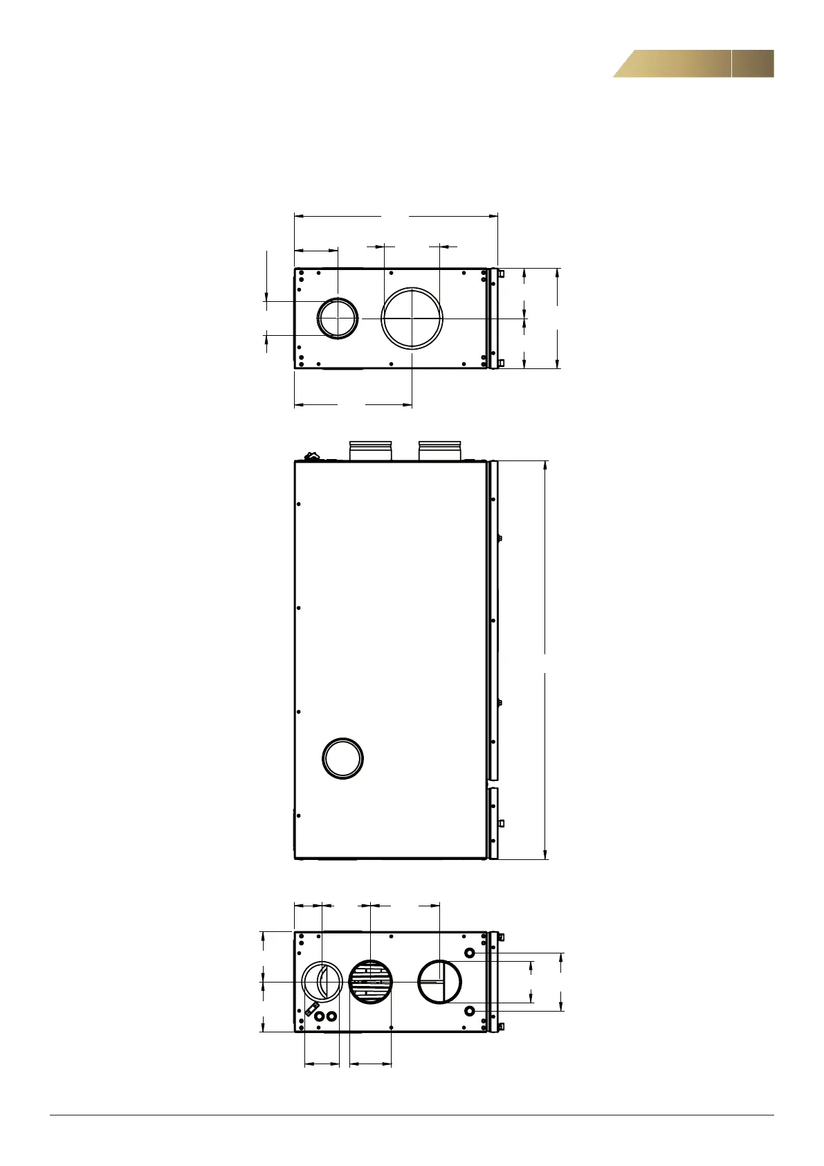
DIMENSIONS AND WEIGHT
DIMENSIONS AND WEIGHT
Weight: 55 kg
125
80
Ø120Ø100
140
200
168
Ø120
=
=
1150
290
580
340
Ø160
Ø100
=
=
Figure 8.