EasyManua.ls Logo

Fluo DCT35IUINVR32 - Page 202

Default Icon
240 pages
Print Icon
To Next Page IconTo Next Page
To Next Page IconTo Next Page
To Previous Page IconTo Previous Page
To Previous Page IconTo Previous Page
Loading...
202
IT
Inverter DC Unità a cassetta U-match Series
43
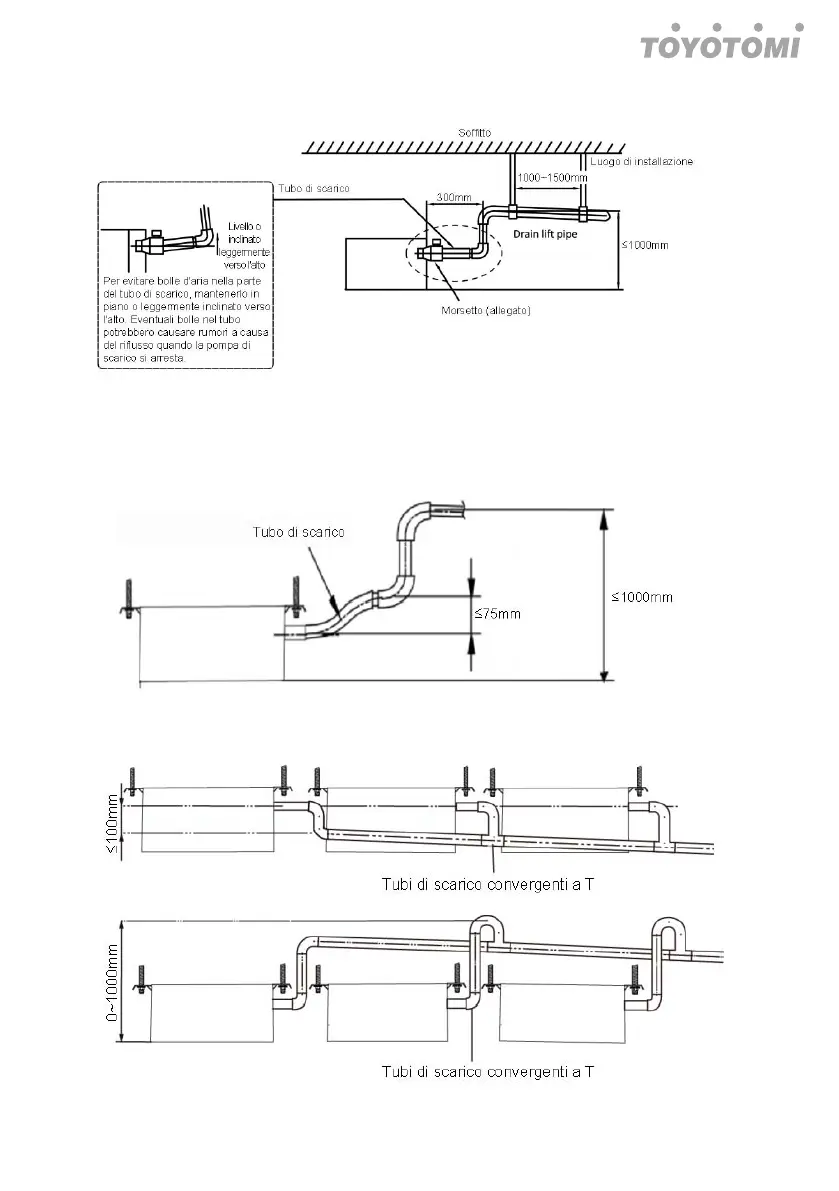
come indicato in figura.
L’altezza verticale del tubo di scarico deve essere di 75 mm o meno, per
cui non è necessario che l’uscita sopporti ulteriore sforzo.
Se si utilizzano più tubi di scarico l’installazione deve essere eseguita come
indicato in figura.

Table of Contents

Related product manuals