EasyManua.ls Logo

Fluo DCT35IUINVR32 - Page 23

Default Icon
240 pages
Print Icon
To Next Page IconTo Next Page
To Next Page IconTo Next Page
To Previous Page IconTo Previous Page
To Previous Page IconTo Previous Page
Loading...
23
GB GB
DC Inverter U-match Series Duct Type Unit
19
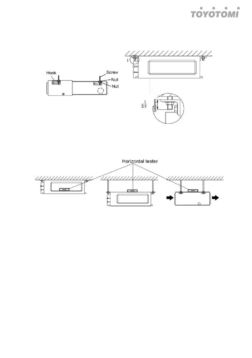
(4) Pass the unit hangers over the bolts installed to the ceiling and install the unit
with the special nut. See the following figure.
3.2.1.2 Leveling
The water level test must be done after installing the indoor unit to make the
unit is horizontal, as shown below.
3.2.2 Outdoor Unit Installation
(1) If the outdoor unit is installed on a solid ground such as concrete, use M10
screw bolts and nuts to secure the unit and make sure the unit stands erect and
level.
(2) Do not install it on top of the building.
(3) If it vibrates and causes noise, please add rubber cushion between the outdoor
unit and the installation base.
(4) When the outdoor unit is in heating or defrosting, it needs to drain water. When
installing the drain pipe, plug the accompanied drainage connector to the
drainage hole on the chassis of the outdoor unit. Then connect a drain hose to
the drainage connector (If drainage connector is used, the outdoor unit should
be at least 10cm from the installation ground). See the following figures.

Table of Contents

Related product manuals