EasyManua.ls Logo

Frick QUANTUM LX Control Panel - Page 28

Frick QUANTUM LX Control Panel
64 pages
Print Icon
To Next Page IconTo Next Page
To Next Page IconTo Next Page
To Previous Page IconTo Previous Page
To Previous Page IconTo Previous Page
Loading...
QUANTUM
LX EVAPORATOR CONTROL PANEL
MAINTENANCE
090.610-M (MAY 2016)
Page 28
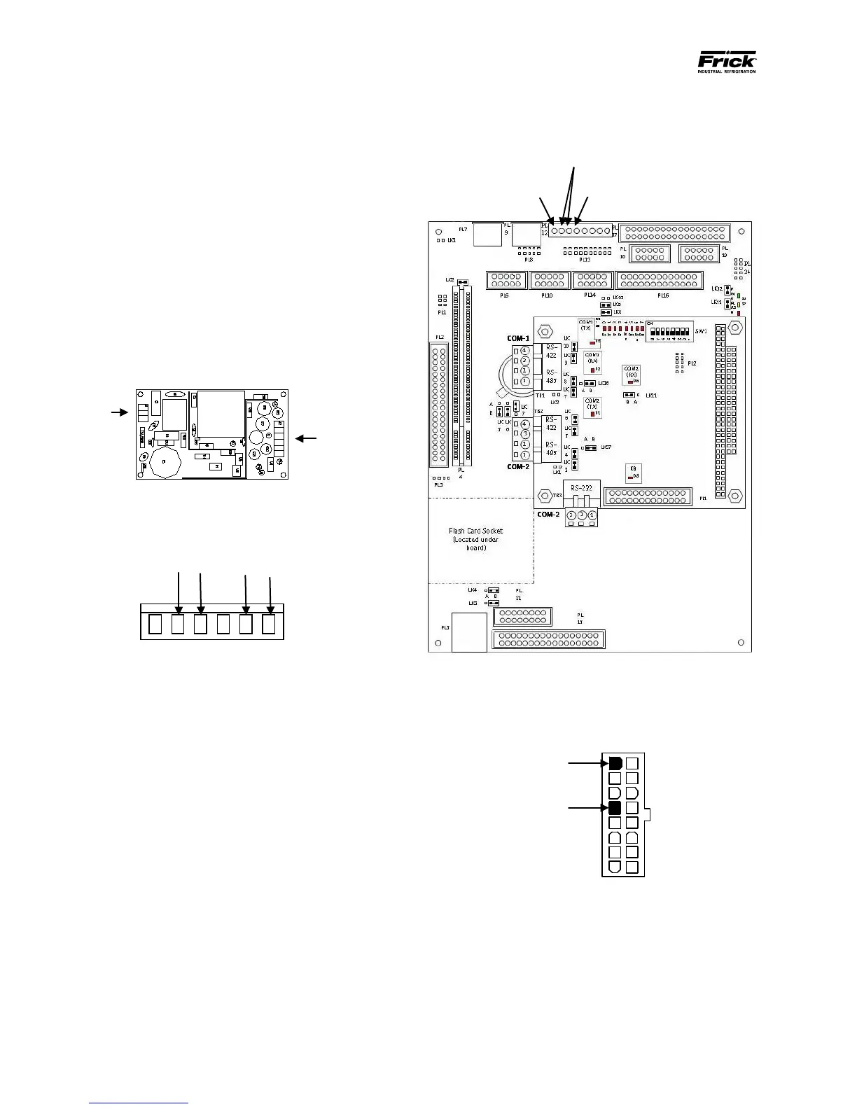
Q4 POWER SUPPLY
+5 VDC
Common
+12 VDC
If the voltages from the power supply are within the
acceptable ranges, then measure them at the last I/O
board in the daisychain, as shown below:
+5V
RET
If any of the voltages measure outside of the acceptable
range, yet measured correctly at the power supply,
then a problem with the wiring harness should be
suspected and checked.
REPLACEMENT
If the power supply is found to be bad, or out of
adjustment, it will need replacing.
EVAPORATOR LX CONTROL PANEL POWER
SUPPLY
CAUTION! Measuring the power supply voltages
require the control power to be energized. Extreme
care must be observed when taking any readings, as
120 VAC is present within the power supply.
The Q4 controller utilizes only the +5 VDS and +12
VDC voltages from the power supply. To perform
measurements on the power supply voltages, use a
reliable, calibrated Digital Volt Meter (DVM). The DVM
should be accurate to 1/100 of a volt DC. Turn the
control power switch to ON.
AC Input
DC
Output
Measure the voltages on the power supply at the DC
output connector as shown below:
RET RET +5 +12
The following voltage range is considered to be acceptable:
+5 VDC supply (+5.15 to +5.20 VDC)
+12 VDC supply (+11.8 to +12.2 VDC)
If the voltages from the power supply are within the
acceptable ranges, then measure them at the Q4 control
board, as shown below:

Related product manuals