EasyManua.ls Logo

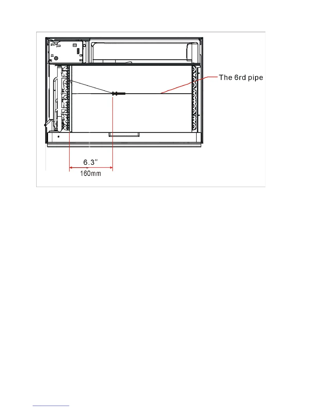
Frigidaire FAA068P7A-B - Control Thermostat Location Diagrams for SLO3

Frigidaire FAA068P7A-B
71 pages
Print Icon
To Next Page IconTo Next Page
To Next Page IconTo Next Page
To Previous Page IconTo Previous Page
To Previous Page IconTo Previous Page
Loading...
Control Thermostat Location diagram for SLO3
57

Table of Contents

Related product manuals