EasyManua.ls Logo

Frigidaire FFEF3011LB - Page 2

Frigidaire FFEF3011LB
2 pages
Print Icon
To Previous Page IconTo Previous Page
To Previous Page IconTo Previous Page
Loading...
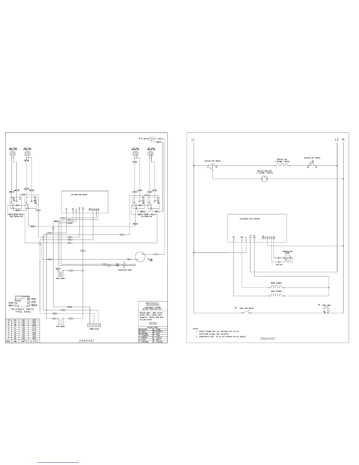
General Troubleshooting SchematicGeneral Troubleshooting Diagram

Related product manuals