EasyManua.ls Logo

Frigidaire FFGS3026TS - Page 4

Frigidaire FFGS3026TS
44 pages
Print Icon
To Next Page IconTo Next Page
To Next Page IconTo Next Page
To Previous Page IconTo Previous Page
To Previous Page IconTo Previous Page
Loading...
4
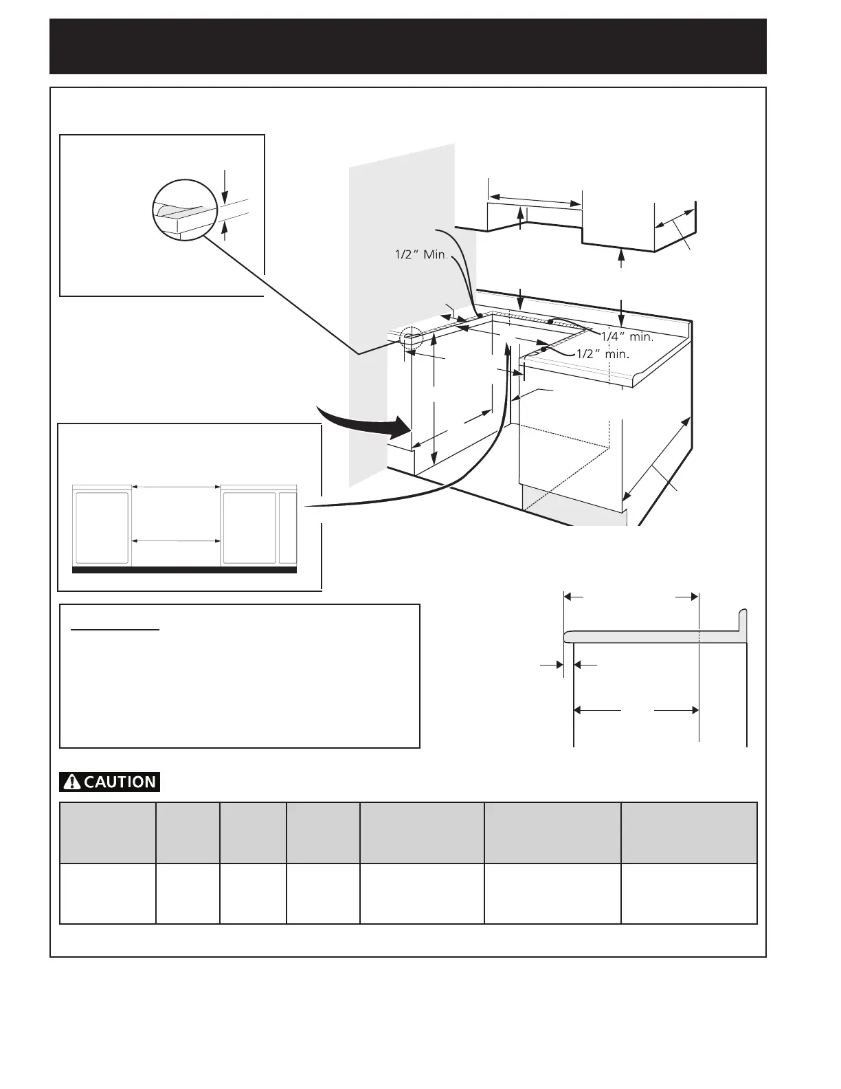
30" GAS SLIDE-IN RANGE INSTALLATION INSTRUCTIONS
(Models with Sealed Top Burners)
NOTE: Wiring diagram for these appliances are enclosed in this booklet.
E
E
WALL
5" Min.
(12,7 cm Min.)
From Wall Both
Sides
30" Min.
(76,2 cm Min.)
18" Min.
(45,7 cm) Min.
Approx. 1 7/8"
(4,8 cm)
Locate Cabinet Doors
1" (2,5 cm) Min. from
Cutout Opening.
F
G
E
31 1/2"
(80 cm)
Exact
13"
(33 cm)
Shave
Raised Edge
to Clear
Space for a
31
1
/
2
" min (80
cm) Wide
Cooktop.
See
Dimension C
in table.
*IMPORTANT: To avoid cooktop breakage for cutout
width (E dimension) of more than 30 1/16" (76,4 cm),
make sure the appliance is centered in the counter
opening while pushing into it. Raise leveling legs at a
higher position than the cabinet height (see page 5),
insert the appliance in the counter and then level. Make
sure the unit is supported by the leveling legs and
NOT by the cooktop itself.
1 ½" Max.
(3,8 cm Max.)
30" Min.
(76,2 cm) Min.
(see page 3,
note 3)
24" Min.
(61 cm Min.)
These surfaces should
be at & leveled
(hatched area).
IMPORTANT: Cabinet and
countertop width should match
the cutout width.
Do not install the unit in the cabinet before reading next these 2 pages.
A. HEIGHT
(Under Cooktop)
B. WIDTH
C.
COOKTOP
WIDTH
D. TOTAL
DEPTH TO
FRONT OF
RANGE
E. CUTOUT WIDTH
(Countertop and
cabinet)*
F. CUTOUT DEPTH
G. HEIGHT
OF COUNTERTOP
35 7/8" (91,1 cm)
36 5/8" (93 cm)
30"
(76,2 cm)
31 ½"
(80 cm)
28 5/16"
(71,9 cm)
30±1/16"
(76,2±0,15 cm)
21 3/4" (55,2 cm) Min.
22 1/8" (56,2 cm) Max
24" (61 cm) Min. with
backguard
36 5/8" (93 cm) Max.
35 7/8" (91,1 cm)
Cabinet Dimensions
1 1/8"
(2,86 cm)
FRONT
OF
CABINET
F
Ref.
22 7/8" (58,1 cm) min.
23 1/4" (59,05 cm) max.
(see page 3,
note 4)

Table of Contents

Related product manuals