EasyManua.ls Logo

FRIMEC FCR200E - Sound Data; Sound Pressure Level

Default Icon
37 pages
Print Icon
To Next Page IconTo Next Page
To Next Page IconTo Next Page
To Previous Page IconTo Previous Page
To Previous Page IconTo Previous Page
Loading...
Page 17
Sound Data
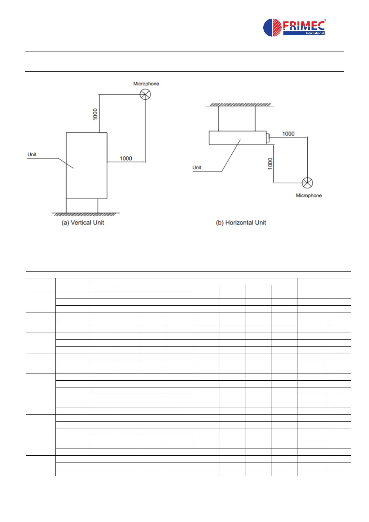
Sound pressure level test setup complies to GB/T19232-2003
Sound pressure level
Model: FCR-E
ESP 30Pa
Model
Fan
Speed
1/1 Octave Sound pressure level (dBA, ref 20µPa)
Overall
dB(A)
NC
63 125 250 500 1K 2K 4K 8K
200
High 14 24 33 34 34 29 22 13 36.9 33
Medium 13 18 27 28 29 24 16 12 32.0 27
Low 12 16 23 26 26 22 13 13 29.5 24
300
High 17 27 36 37 38 33 25 16 40.9 37
Medium 12 21 30 32 32 27 19 13 34.8 31
Low 12 13 21 23 23 19 14 12 26.8 21
400
High 19 29 37 39 40 35 27 18 42.9 39
Medium 14 24 32 35 35 31 22 14 38.0 34
Low 13 17 24 26 35 22 15 12 29.7 24
500
High 21 32 39 41 35 36 29 20 44.4 40
Medium 14 24 33 35 35 30 23 14 38.0 34
Low 12 17 25 27 35 24 15 12 30.9 26
600
High 22 33 41 42 35 38 30 22 46.4 43
Medium 17 27 35 36 35 33 25 17 40.2 36
Low 13 18 26 29 35 24 17 14 32.3 27
800
High 23 34 42 43 35 39 32 23 46.5 43
Medium 18 28 36 37 35 34 26 17 41.0 36
Low 13 19 28 29 35 25 18 13 32.6 27
1000
High 25 35 44 45 35 41 33 25 49.0 45
Medium 21 32 40 42 35 37 30 21 45.3 41
Low 14 22 30 32 35 28 20 13 35.1 31
1200
High 26 37 46 47 35 43 35 26 50.9 47
Medium 19 30 38 39 35 35 27 19 42.8 39
Low 13 21 29 30 35 26 18 12 33.9 30
1400
High 27 38 47 48 35 43 37 28 51.3 47
Medium 19 30 38 40 35 36 28 19 43.7 39
Low 13 21 29 31 35 26 19 14 34.4 30
1. Sound pressure level of FCUs are tested in accordance to GB/T19232-2003 under 11.5 dBA background noise.
2. Microphone position: 1m in front and 1m below the unit.