EasyManua.ls Logo

Fuji Xerox ApeosPort-IV 5070

Fuji Xerox ApeosPort-IV 5070
675 pages
To Next Page IconTo Next Page
To Next Page IconTo Next Page
To Previous Page IconTo Previous Page
To Previous Page IconTo Previous Page
Loading...
16 Appendix
612
Appendix
16
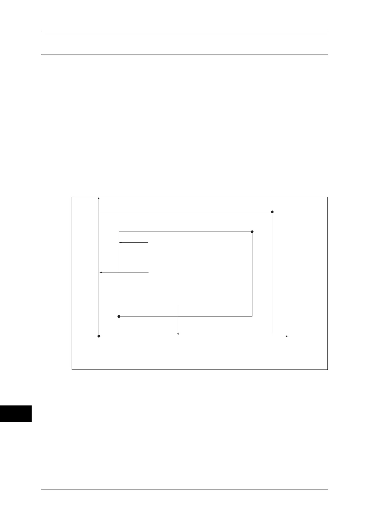
Hard Clip Area
In the HP-GL mode, the plottable area is determined in line with the paper size, apart
from the printable area. This area is called the "hard clip area", and determines the
maximum range of pen movement. Accordingly, images cannot be drawn outside the
boundary of the hard clip area. This machine allows you to select a hard clip area from
the following:
Standard
Defines the printable area of the machine as the hard clip area.
Paper
Defines a size same as the paper size as the hard clip area. However, the area that
allows actual printing is within the printable area.
The hard clip area can be set either with HP-GL emulation mode settings or by the
specified hard clip command “&I”.
The following coordinate values present an example of when the origin is set at the
lower left (Auto Layout in HP-GL/2) of A3 sheet.
(16798, 11876)
(16442, 11520)
Standard Hard Clip Area
Paper Hard Clip Area
Paper Size
(0, 0) Standard origin
(0, 0) Paper origin
+X
+Y

Table of Contents

Other manuals for Fuji Xerox ApeosPort-IV 5070

Related product manuals