EasyManua.ls Logo

Fujitsu AMUG36LMAS - Models: AOUG36 LMAS1 and AOUG48 LMAS1

Fujitsu AMUG36LMAS
106 pages
Print Icon
To Next Page IconTo Next Page
To Next Page IconTo Next Page
To Previous Page IconTo Previous Page
To Previous Page IconTo Previous Page
Loading...
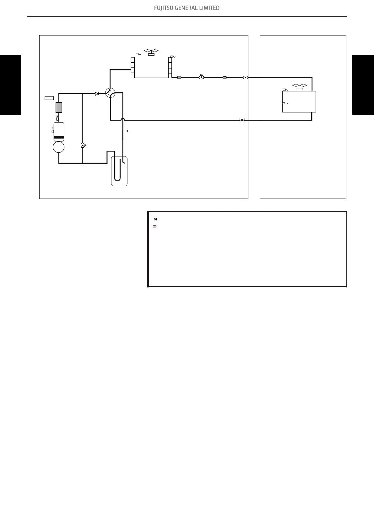
4-2. Models: AOUG36LMAS1 and AOUG48LMAS1
: Check valve
: Strainer
Outdoor unit
FAN
EEV
TH4
HPS
ACM
INV
HEX
4WV
CMP
ACM
CMP
INV
Indoor unit
HEX
FAN
Muffler
3WV
3WV
TH3
TH5
TH6
TH1
Fusible plug
EEV
: Thermistor (Outdoor temperature)
: Thermistor (Heat Exchanger Out temperature)
: Thermistor (Room temperature)
: Thermistor (Heat Exchanger Med temperature)
㼀㻴㻢
㼀㻴㻝
: Thermistor (Shell)
㼀㻴㻟
㼀㻴㻡
㼀㻴㻠
: Thermistor (Discharge temperature thermistor)
㼀㻴㻞
TH2
㻴㻱㼄
: Heat exchanger
㻭㻯㻹
: Accumulator
㻴㻼㻿
: High pressure sensor
㻠㼃㼂
: 4-way valve
㻱㻱㼂
: Electric expansion valve
㻯㻹㻼
: Compressor (Inverter type)
㻟㼃㼂
: 3-way valve
Belt heater
- 78 -
4-2. Models: AOUG36LMAS1 and AOUG48LMAS1 4. Refrigerant circuit
OUTDOOR UNIT
AOU24-30RGLX,
AOUG36-48LMAS1
OUTDOOR UNIT
AOU24-30RGLX,
AOUG36-48LMAS1

Table of Contents

Other manuals for Fujitsu AMUG36LMAS

Related product manuals