EasyManua.ls Logo

Fujitsu AOG25RNBL - Page 13

Fujitsu AOG25RNBL
63 pages
Print Icon
To Next Page IconTo Next Page
To Next Page IconTo Next Page
To Previous Page IconTo Previous Page
To Previous Page IconTo Previous Page
Loading...
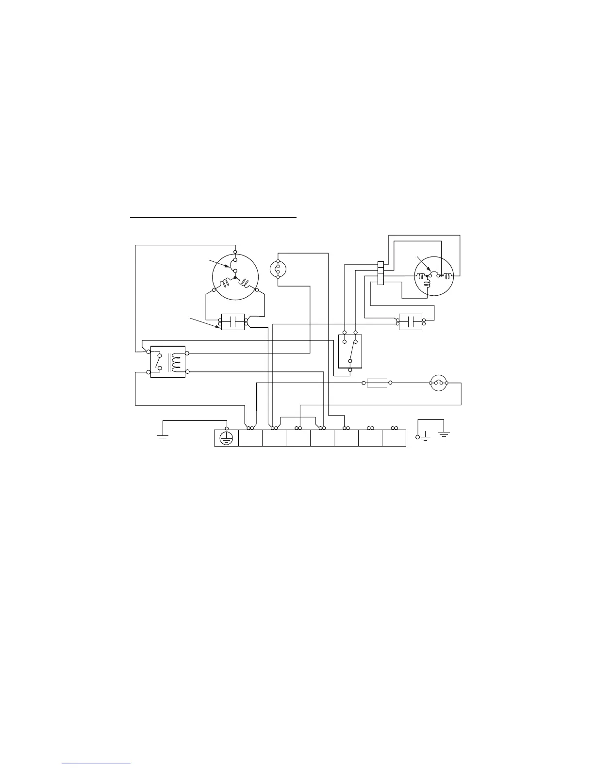
Models : AOG30AMBH, AOY30AMBH
(N)
LN 1
32
C
RS
BLACK
BLUE
RED
BLACK
RED
GREEN/YELLOW
BLACK
BLACK
BLACK
BLACK
BLACK
BROWN
BROWN
BROWN
WHITE
WHITE
WHITE
WHITE
WHITE
6
5
4
1
H
L
C
FAN
MOTOR
FUSE
5A
TERMINAL
FAN MOTOR
CAPACITOR
COMPRESSOR
CAPACITOR
COMPRESSOR
MAIN RELAY
THERMAL
PROTECTOR
INTERNAL
OVERLOAD
PROTECTOR
CONNECTOR
OUTDOOR
THERMOSTAT
PRESSURE
SWITCH
THERMAL
SWITCH
122003.05.08

Related product manuals