EasyManua.ls Logo

Fujitsu AOTG18LVCC - Sound Level Check Point

Fujitsu AOTG18LVCC
59 pages
Print Icon
To Next Page IconTo Next Page
To Next Page IconTo Next Page
To Previous Page IconTo Previous Page
To Previous Page IconTo Previous Page
Loading...
-
(
02 - 22
)
-
OUTDOOR UNIT
AOTG09-22LV
OUTDOOR UNIT
AOTG09-22LV
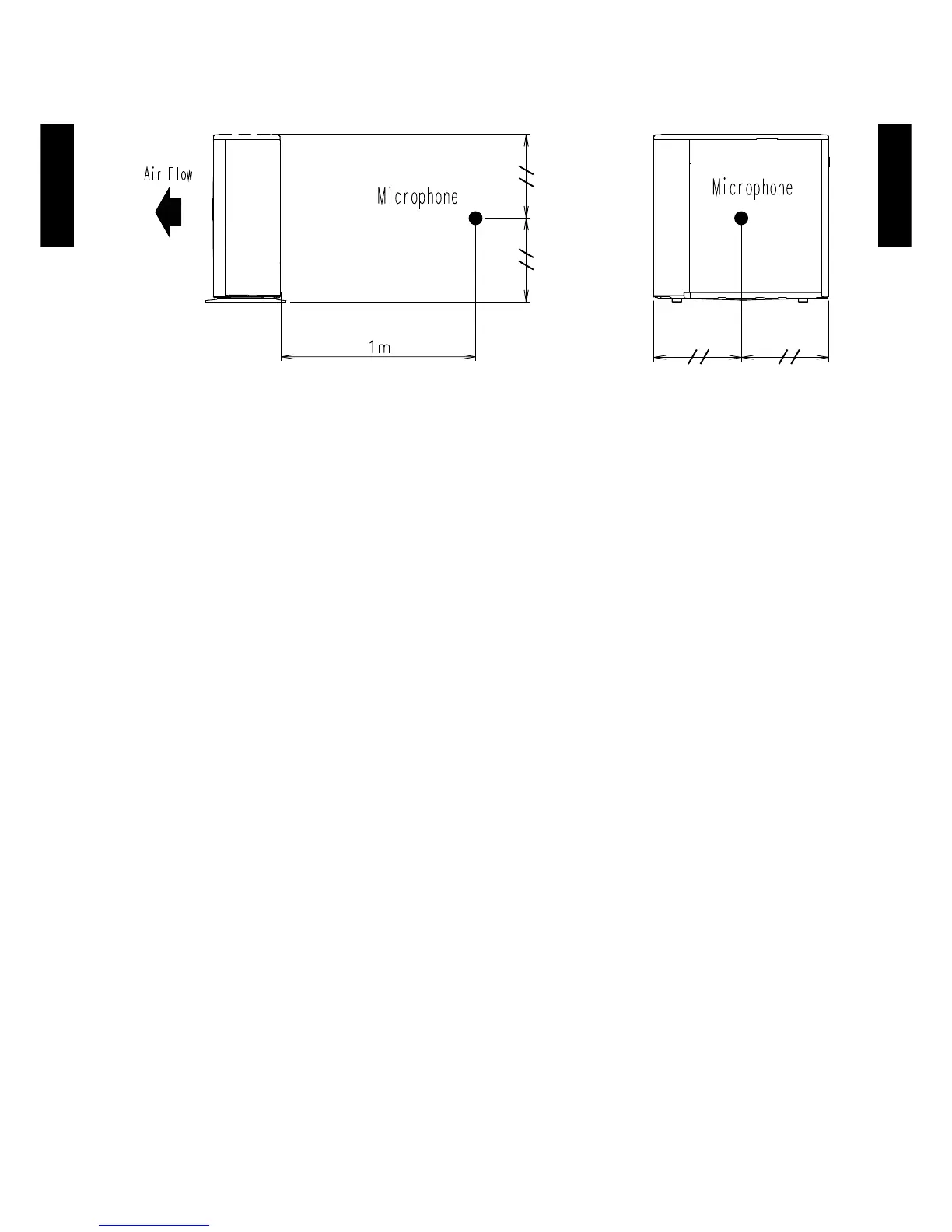
SOUND LEVEL CHECK POINT8-2.

Related product manuals