EasyManua.ls Logo

Fujitsu AOU18CL - Electrical Wiring (Outdoor Unit)

Fujitsu AOU18CL
14 pages
Print Icon
To Next Page IconTo Next Page
To Next Page IconTo Next Page
To Previous Page IconTo Previous Page
To Previous Page IconTo Previous Page
Loading...
12
3
4
12
3
45
G
G
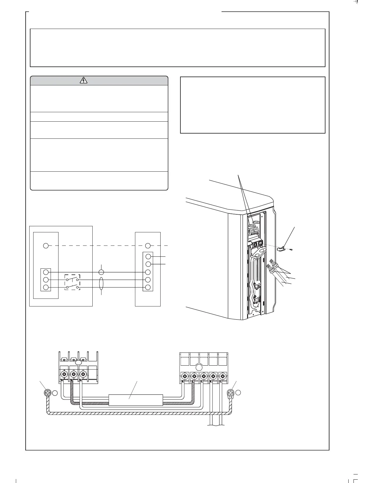
ELECTRICAL WIRING (OUTDOOR UNIT)
1. Remove the screws, then remove the control box cover.
2. Fasten the Inter unit wire harness and power supply to the conduit holder using the lock nut.
3. Connect inter-unit wire harness and power supply to the terminal.
Refer to the wiring diagram
4. Use the screws to install the control box cover.
WARNING
Be sure to comply with local codes while run-
ning the wire from the indoor unit to the out-
door unit (size of wire and wiring method, etc. ).
Every wire must be connected firmly.
No wire should be allowed to touch refrigerant
tubing, the compressor or any moving part.
Loose wiring may cause the terminal to over-
heat or result in unit malfunction. A fire hazard
may also exist. Therefore, be sure all wiring is
tightly connected.
Connect wires to the matching numbers of
terminals.
NOTE:
Connector trade size for this unit is 1/2” (12.7 mm). The connec-
tor can be bought at a hardware store. Refer to How to connect
wiring to the terminals for instructions on connecting depend-
ing on the wire type you are using.
The fuse located in the outdoor unit provides power supply pro-
tection and may blow when power is applied if the system has
been incorrectly wired.
G
G
1
1
G
G
3
3
2
2
1
1
2
2
3
3
208/230V
208/230V
208/230V
208/230V
208/230V
208/230V
5
5
(L)
(L)
(N)
(N)
4
4
Indoor unit
Terminal
Grounding line
Control line
(Inter Unit)
Power line
DISCONNECT
SWITCH
(FIELD SUPPLY)
Outdoor unit
Terminal
POWER SUPPLY
1 phase, 208/230V
Earth screw
Indoor unit
terminal block
Outdoor unit
terminal block
Disconnect switch
Earth screw
Power supply line
Lock nut
Cord Clamp
Conduit
connector
Power supply
Inter-unit
wire harness
Fig. 11

Other manuals for Fujitsu AOU18CL

Related product manuals