EasyManua.ls Logo

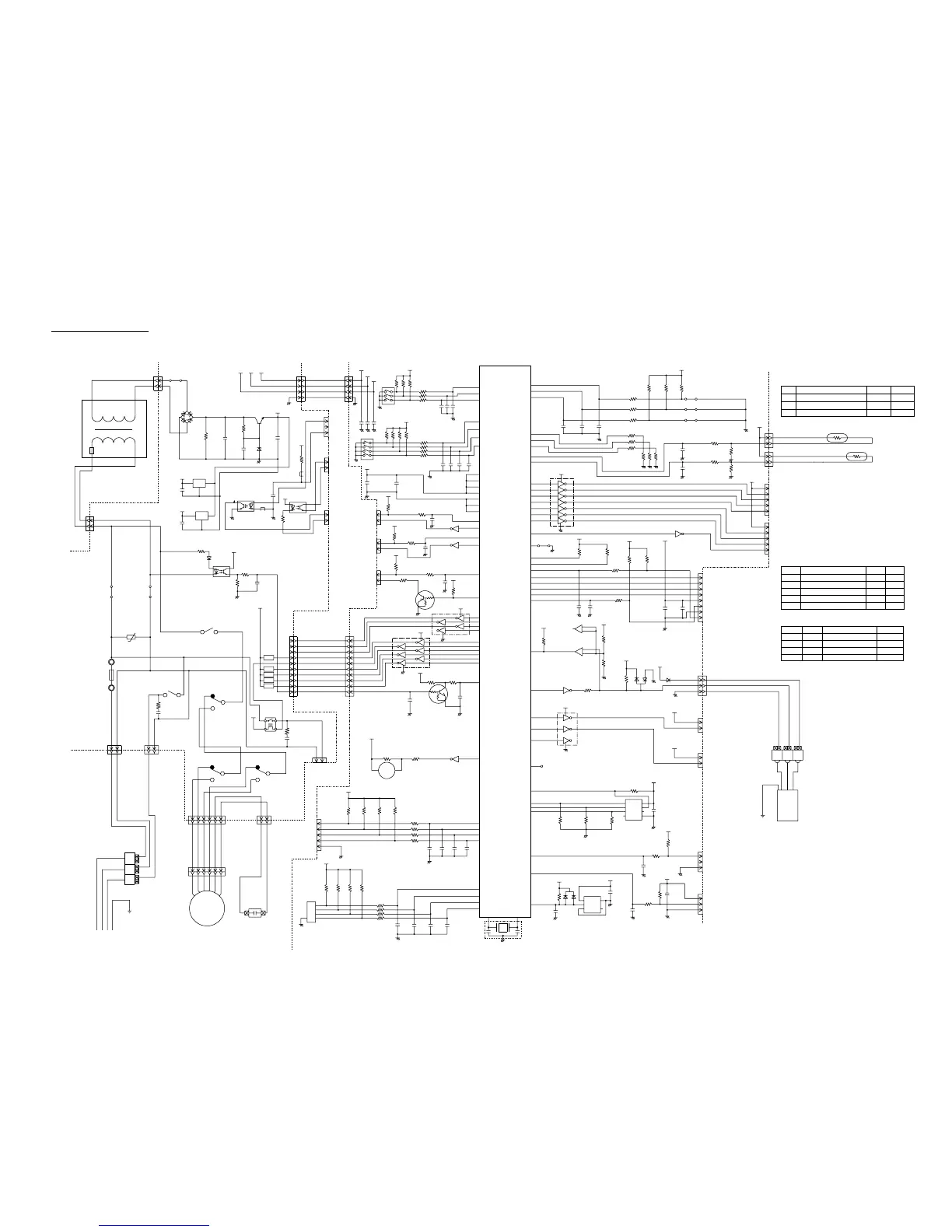
Fujitsu AOY45UMAXT - INDOOR PCB CIRCUIT DIAGRAM; Diagram for ARG45 FUAN, ARY45 FUAN

Fujitsu AOY45UMAXT
25 pages
Print Icon
To Next Page IconTo Next Page
To Next Page IconTo Next Page
To Previous Page IconTo Previous Page
To Previous Page IconTo Previous Page
Loading...
JP
Delay
off
+2 deg.
commercial
Function
Commercial mode
on
0 deg.
normal
No delay
Fan delay change (heating operation)
JP3
Room temp. correction (cooling)
JP
JP1
JP2
SW1 & SW2
SW1-1 Fan changer
on offSW Function
SW2-3
Room temp. correction (heating)
SW2-1
SW1-2
SW2-2
not auto
0 deg.
-
pulse
auto
+4 deg.
-
- -
edge
Auto restart
Ex. signal function changer
Fan changer
SW1-3 SW1-4 Wired remote controller
Remote control unit custom code switching
on
on off
off
on
on
off
off
weekly type
EZ-09503HSE-R series
EZ-098YHSE-R series
"with thermistor" type
Wireless
B type
D type
C type
A type
2005.12.06 8
INDOOR PCB CIRCUIT DIAGRAM
9
8
7
6
5
4
3
2
1
10
11
12
13
14
15
16
5V
5V
R41 1.0K <1/10W>
5V
C40
0.01
<F>
C2
10/
25V
+
12V
1
2
3
4
5
6
7
8
710
2
3
4
5
1
2
3
4
5
1
2
1
2
1
5V
BLACK
BLACK
GRAY
GRAY
1
3
2
1
2
1
2
1
2
3
1
2
3
VCC
VOUT
GND
SUB
NC
5
4
3 1
2
5V
5V
C12
0.1
<F>
I C9
BD4742G
D1
DAN202K
C37
0.01
<F>
C11
0.1
<F>
X1
CSTS0500MG03-T
2
1
70
69
X1
X2
12
13
16
17
42
41
43
44
50
63
19
20
21
22
23
24
29
26
27
28
9
8
25
30
46
45
33
67
4
7
75
68
74
10
11
6
5
3
2
1
65
66
73
80
79
78
76
77
59
58
57
56
55
54
53
52
71
14
15
40
36
37
38
39
62
61
51
47
48
49
72
35
31
32
34
18
64
60
RESET
P03
P27
P56
P55
P54
R72
10K
<1/10W>
R80
10K
<1/10W>
R79 1.0K
<1/10W>
C10
0.1
<F>
5V
R39
10K
<1/10W>
C36
0.01
<F>
R40 1.0K
<1/10W>
5V
C13
0.1
<F>
5V
I C7
BR93LC46
R45 - R47
10K <1/10W> x 3
NC
R48 10K <1/10W>
P57
XT2
P35
P34
P33
P37
P00
P23
P24
P64
P60
P61
P62
P63
P01
I C
P120
P121
P127
P126
P125
P124
P123
P122
P14
P13
P12
P10
P11
P04
P05
P07
P15
P16
P17
P130
P131
P72
P20
VDD0
VDD1
AVR F0
AVR F1
AVS S
VSS0
VSS1
P31
P32
P53
P46
P70
P71
P51
P50
P47
P52
P45
P44
P43
P42
P41
P40
P02
P36
P30
P67
P66
P65
P21
P22
P25
P26
C27
0.1
<F>
C26
0.1
<F>
C25
0.1
<F>
C24
0.1
<F>
R21 - R24
1.0K <1/10W> x 4
5V
C28 - C31
0.01 <F> x 4
5V
14V
R33 - R36
1.0K <1/10W> x 4
10K <1/10W> x 4
R29 R30 R32R31
BZ1
R37 1.0K
<1/10W>
R38 1.0K
<1/10W>
I C3 (1/7)
uPA2003GR
12 5
1
2
3
4
5
1
2
4
3
2
1
8
4
2
1
5
C
1
2
3
45
6
1
3
4
2
1
9
3
7
6
5
4
8
2
10
K104
SSR
I NT
1
23
4
3
2
1
3
1
2
2
3 1
O
I
G
O
I
G
2
1
32
1
4
2
1
3
2
1
1
2
4
3
1
2
4
3
1
2
3
4
1
2
2
1
1
2
5V
5V
C21 - C23
0.1 <F>
x 3
C17 - C20
0.1 <F> x 3
5V
+
C3
0.01
<F>
5V
C1
100/
6.3V
5V
5V
14V
PC103
TLP621
<GB>
14V
12V
5V
SW2
R15 - R17
10K <1/10W>
x 3
R18 - R20
1.0K <1/10W> x 3
SW1
14V
I C5 (7/7)
uPA2003GR
JM4
5V
14V
I C3 (3/7)
uPA2003GR
14V
D3
D1FS4A
D2
DA226U
12V
12V
14V
REMOTE CONTROL UNIT
TERMINAL BOARD
EARTH WIRE
3
2
1
UL1430 AWG22 BLACK
UL1430 AWG22 RED
UL1430 AWG22 WHITE
R43 R44
10K <1/10W> x 2
I C3 (1/7)
uPA2003GR
R71
10K
<1/10W>
R68
15.4K
<1/10W>
R69
28K
<1/10W>
R70
10K
<1/10W>
I C3 (1/7)
uPA2003GR
I C6-2
BA10393F
I C6-1
BA10393F
R67 390
<1/10W>
611
2
3
1
7
6
5
+
+
-
-
9
8
15
14
13
2
3
4
1
2
3
6
8
4
7
5
CS
SK
D I
NC
VCC
DO
NC
GND
R42 47
<1/10W>
C41
1000P
<R>
C39
0.01
<F>
R50 10K
<1/10W>
R49 10K
<1/10W>
R62 - R64
10K <1/10W> x 3
R57 - R59
1.0K <1/10W> x 3
C14
0.1
<F>
C15
0.1
<F>
C16
0.1
<F>
C8
0.1
<F>
C9
0.1
<F>
R60 1.0K
<1/10W>
R61 1.0K
<1/10W>
14V
R65
10K
<1/10W>
R66
49.9K
<1/10W>
5V
JM1
JM2
JM3
COMMERCIAL MODE
ROOM TEMPERATURE CORRECTION
( COOLING OPERATION )
FANDELAY CHANGE
( HEATING OPERATION )
10K <1/10W> x 3R3 R2 R1
R4 1.0K <1/10W>
R6 1.0K <1/10W>
R5 1.0K <1/10W>
CN8
B2B-XASK-1-A
WHITE
CN7
B2B-XAKK-1-A BLACK
ROOM TEMPERATURE THERMISTOR
PIPE TEMPERATURE THERMISTOR
CN11
B5B-XASK-1-A
WHITE
LOUVER ( UP / DOWN )
CN12
B5B-XARK-1-A
RED
LOUVER ( RIGHT / LEFT )
CN13
B8B-XASK-1-A
WHITE
INDICATOR
CN6
B3B-XAKK-1-A
BLACK
CN14
B02B-PAMK-1
GREEN
FRESH AIR
HEATER
CN15
B02B-PA0K-1
ORANGE
CN9
B3B-XARK-1-A
RED
FLOAT SWITCH
FEED BACK
CN10
B3P-VH-B
WHITE
SW3
R25 - R28
10K <1/10W>
x 4
FANCAPACITOR
15uF
440V
CN108
B2P3-VH-B-Y
YELLOW
CN3
B5P-SHF-1AA
WHITE
TEST
CN107
B6P11-VH-B
WHITE
CN109
B2P3-VH-B-E
BLUE
DRAIN PUMP
1
2
14V
CR101
120 / 0.2
K104
G5N-1A
K102
G5SB-14
DC12V
K103
G5SB-14
DC12V
K101
G5SB-14
DC12V
K108
G5N-1A
CR104
120 / 0.2
CN111
B2P3-VH-B
WHITE
12
CN101
B2P3-VH-B-C
BLACK
AC I N MAGNETIC
RELAY
NL
FH101
FH102
F101
3.15A
<BET>
VA1 01
470V
K110
G2R-1A
DC12V
14V
K108
K103
K101
K110
K102
1
9
3
7
6
5
4
8
2
10
UL1430 AWG26 GRAY
UL1430 AWG26 GRAY
UL1430 AWG26 GRAY
UL1430 AWG26 GRAY
UL1430 AWG26 GRAY
UL1430 AWG26 GRAY
UL1430 AWG26 GRAY
UL1430 AWG26 GRAY
UL1430 AWG26 GRAY
UL1430 AWG26 GRAY
RELAY DRIVE
CN116
B10B-PASK-1
WHITE
CN2
B10B-PASK-1
WHITE
5V
Q2
DTC124EKA
C33
0.01
<F>
C32
0.01
<F>
R78 390
<1/10W>
R77 390
<1/10W>
1
2
3
8
16
14
12
9
11
6
4
2
13
15
3
1
5
8
9
15
13
2
4
14
16 1
3
1
2
3
2
1
2
1
10
7
2
1
1
16
C35
0.01
<B>
R73
10K
<1/10W>
R74 1.0K <1/10W>
5V
R53
10K
<1/10W>
C38
0.01
<F>
R55
10K
<1/10W>
R56 1.0K <1/10W>
I C2 (1/7)
uPA2003GR
I C3 (1/7)
uPA2003GR
C34
0.01
<F>
R54 180
<1/10W>
14V
14V
Q1
DTA143
I C4 (4/7)
uPA2003GR
I C2 (6/7)
uPA2003GR
B Z
3
1
FAN
MOTOR
OUTDOOR UNIT
2(N)
JM101
JM102
5V
C113
0.01
<B>
R105 1.0K
<1/4W>
R106
10K
<1/4W>
D104
1SR139-600
R104 56K
<RS-1W>
PC101
TLP621
<GB>
UL1015 AWG20 WHITE
UL1015 AWG20 WHITE
UL1015 AWG22 BLACK
UL1015 AWG22 WHITE
UL1015 AWG22 RED
UL1015 AWG22 PINK
UL1015 AWG22 PURPLE
UL1015 AWG22 BLUE
UL1015 AWG18 GRAY
UL1015 AWG18 WHITE
UL1015 AWG18 BLACK
TERMINAL BOARD
UL1015 AWG22 PURPLE
UL1015 AWG22 PURPLE
SECONDARY
PRIMARY
CN103
B2P3-VH-B-R
RED
POWER TRANSFORMER
EZ-0970WWE-T
5V
12V
C112
0.1
<F>
C111
10/
25V
+
I C101
NJM7805
I C102
NJM7812
PC102
TLP621
<GB>
C114
0.01
<B>
FL102
BL02RN1
R108
330 <1/4W>
FL101
BL02RN1
14V
Q101
2SD1932
C109
10/
25V
+
D102
MTZJ15C
D101
D2SB20
R102
10K
<1/4W>
C107
1000
/50V
+
R103
1.0K
<1/2W>
C108
10/
25V
+
CN104
B2B-XARK-1-A
RED
JM103
UL1430 AWG22 RED
UL1430 AWG22 RED
UL1430 AWG26 GRAY
UL1430 AWG26 GRAY
UL1430 AWG26 GRAY
UL1430 AWG26 GRAY
CN105
B04B-PASK-1
WHITE
DC SUPPLY
CN1
B04B-PASK-1
WHITE
CN114
B3B-XH-AM
WHITE
EX. I N
EX. OUT
CN115
B3B-XH-AM
WHITE
5V
R107 330 <1/4W>
5V
12V 14V
R76 10K
<1/10W>
R75 10K
<1/10W>
CN106
B02B-PAKK-A
BLACK
EX. SIGNAL
CN5
B02B-PAKK-1
BLACK
SERIAL
CN4
B02B-PARK-1
RED
NEW SERIAL
CN16
B02B-PASK-1
WHITE
3
2
1
6
5
4
4
3
2
1
8
7
6
5
REMTE CUSTOMO
REMOTE CUSTOM
FAN SWITCHING
FAN SWITCHING
EX. SIGNAL FUNCTION SWITCHING
ROOM TEMPERATURE CORRECTION
( HEATING OPERATION )
AUTO RESTART
R11 - R14
10K <1/10W> x 4
R7 - R10
1.0K <1/10W> x 4
C4
0.1
<F>
C42 - C43
0.1 <F> x 2
I C 1
uPD780058BGK
-A42-9EU-A
CONTROLLER PCB ASSEMBLY ( MAIN PCB )
K03BZ-0408WSE-C1
POWER SUPPLY PCB
K04CW-0401WSE-P0
EX. SIGNAL
FAN CHANGER
FAN CHANGER
Models : ARG45FUAN
ARY45FUAN

Related product manuals