EasyManua.ls Logo

Fujitsu AOYR09LCC - Page 55

Fujitsu AOYR09LCC
108 pages
Print Icon
To Next Page IconTo Next Page
To Next Page IconTo Next Page
To Previous Page IconTo Previous Page
To Previous Page IconTo Previous Page
Loading...
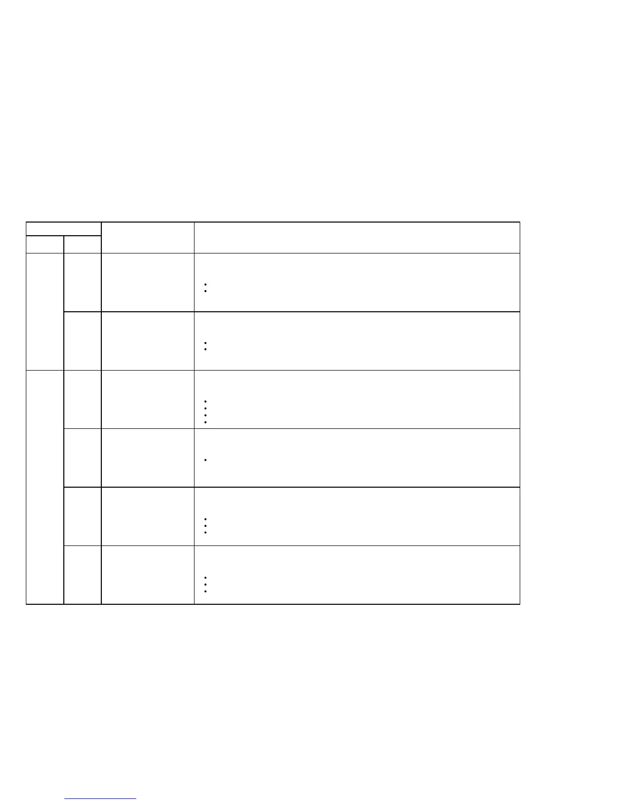
Self - diagnosis function and Checking points
Error Indication
Operation
(RED)
Timer
(GREEN)
Error
(Protection)
Diagnosis Method
0.5 sec
7 times
The air clean operation signal was detected for 1 minute at the time of air clean mode OFF.
> All stop. Not operate remote controller.
Abnormal current value of IPM is detected.
> Permanent stop.
0.5 sec
4 times
07-05
CT error
IPM protection
Reverde-VDD permanence
stop protection
(Electric air clean power
supply circuit abnormal)
VDD permanence stop
protection
(Electric air clean)
When the air cleanness monitor trial protection operates 4 times.
> Only clean air permanent stop.
[Diagnosis Point]
The front panel is closed.
The foreign body such as dust doesn't adhere.
[Diagnosis Point]
Electric air clean defective.
Controller PCB defective.
[Diagnosis Point]
Heat radiation is blocked (inlet/outlet).
Check if outdoor fan is defetcive (does not rotate).
Controller PCB defective (Refer to after mentioned "IPM diagnosis").
Refrigeration cycle defective (Refer to after mentioned "refrigeration cycle diagnosis").
The current value during the operation after 1 minute from starting up the compressor is 0A.
> permanent stop.
[Diagnosis Point]
Controller PCB defective.
The compressor speed does not synchronze with the control signal. (Including start up failure of the compressor).
> permanent stop.
[Diagnosis Point]
Check if 2-way valve or 3-way valve is left open.
Check the compressor (Winding resistance value, loose lead wire).
Refrigeration cycle defective (Refer to after mentioned "refrigerant cycle diagnosis")
Either the outdoor fan motor abnormal current or location error was detected.
> Permanent stop.
[Diagnosis Point]
Fan motor connector loose/ defective contact.
Fan motor defective.
Controller PCB defective.
Compressor location error
Outdoor fan error
(DC motor)
0.5 sec
8 times
0.5 sec
2 times
0.5 sec
3 times
0.5 sec
5 times
0.5 sec
6 times
0.5 sec
5 times

Other manuals for Fujitsu AOYR09LCC

Related product manuals