EasyManua.ls Logo

Fujitsu ARXG12KLLAP - Page 61

Fujitsu ARXG12KLLAP
567 pages
To Next Page IconTo Next Page
To Next Page IconTo Next Page
To Previous Page IconTo Previous Page
To Previous Page IconTo Previous Page
Loading...
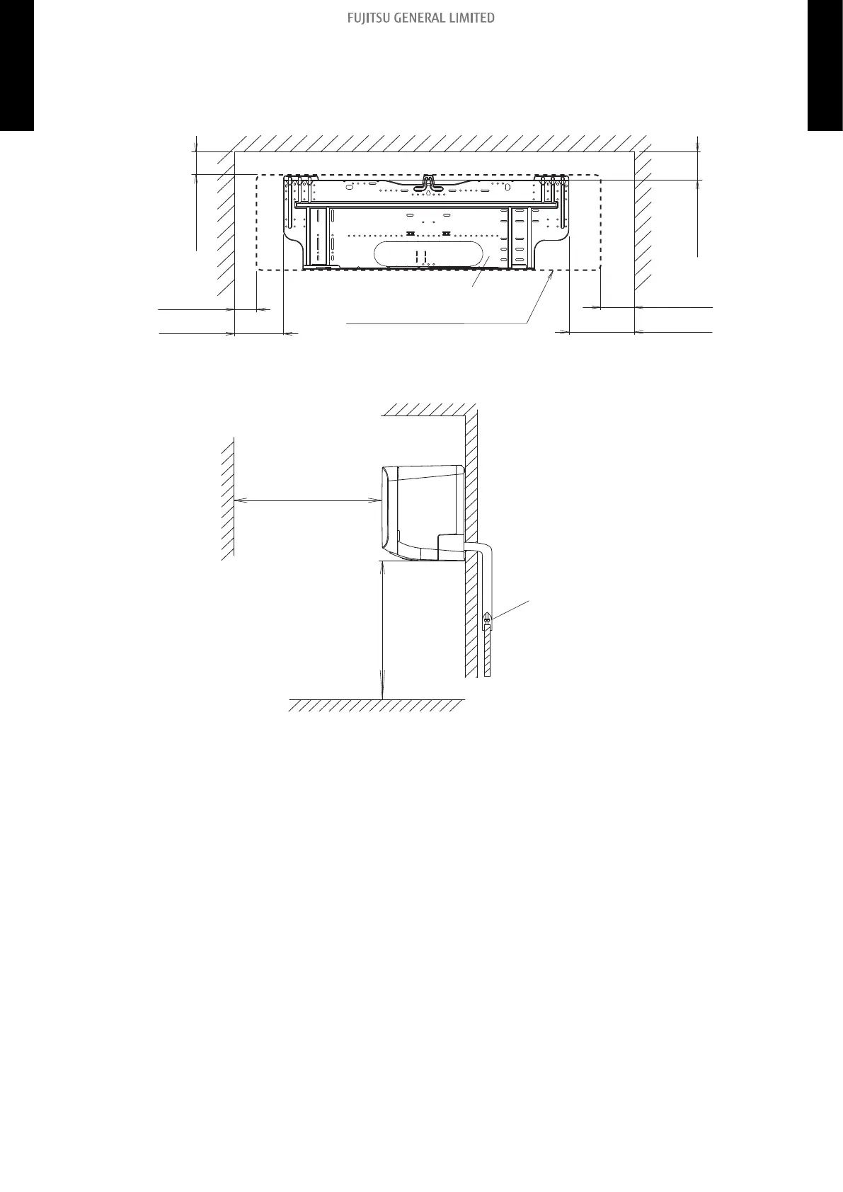
Installation space requirement
Provide sufficient installation space for product safety.
Unit: mm
Wall hook bracket
Outline of the indoor unit
50 or more
71 or more
40 or more
70 or more
117 or more
1,500 or more
1,800 or more
160 or more
A
A: Install so that the flare connection part is outdoors.
- 53 -
4-5. Wall mounted type
4. Dimensions
4-5 UNIT
MULTI-SPLIT TYPE
4-5 UNIT
MULTI-SPLIT TYPE

Table of Contents

Other manuals for Fujitsu ARXG12KLLAP

Related product manuals