EasyManua.ls Logo

Fujitsu ASAG09LJCA - Page 32

Fujitsu ASAG09LJCA
79 pages
Print Icon
To Next Page IconTo Next Page
To Next Page IconTo Next Page
To Previous Page IconTo Previous Page
To Previous Page IconTo Previous Page
Loading...
13V
12V
13V
13V
12V
I C308
PS2501L-1
I C309
PS2501L-1
R315
2.7k
<1/10W>
R316
1.2k
<1/4W>
I C304-1
BA10393F
13V
R318
15.4k
<1/10W>
1%
R319
28k
<1/10W>
1%
13V
R317
10k
<1/10W>
1%
13V
13V
C304
0.1
<F>
I C304
D307
D1F60
L303
0R0
D306
DAN217U
3
2
1
5
6
7
+
-
I C304-2
BA10393F
C310
1000p
<R>
R322
10k
<1/10W>
R330
2.7k
<1/10W>
C309
0.01
<B>
Q303
DTC143EUA
2
3
1
R320
390
<1/4W>
1%
Q302
DTC143EUA
A
A
A
+
-
3
2
1
3
2
1
4
3
2
1
2
3
1
2
3
4
1
Q304
DTC143EUA
R331
22k
<1/10W>
8
4
CNC01
B05B-XASK-1-A
WIRED REMOTE
CONTROL
1
2
3
4
5
1
2
1
2
1
2
3
9
6
5
4
3
2
1
390V
A
A
13V
JM303
0R0
12V
R309
18k
<1/10W>
D303
RF101L2S
+
C306
100/
25V
T301
SW1614-1
10
6
1
2
3
5
4
5
6
7
8
4
2
1
D
BP_M
FB
S
S
S
S
I C301
LNK603
12V
R303
18k
<1/10W>
13V
C305
1.0
<B>
R306
1.0k
1%
R304
36k
1%
R305
6.2k
1%
D302
RF101L2S
C311
100/
25V
+
L301
0R0
R312
1.2k
<1/4W>
C313
0.01
<B>
CNA01
B3B-XH-AM
I C306
PS2501L-1
A
L302
0R0
12V
K301
FTR-F3
A
Q301
DTC123EUA
3
2
1
2
1
3
4
CNB01
B2B-XH-AM
CNB02
B2B-XH-AM
12V
K304
FTR-F3
2
1
3
4
2
3
1
A
Q305
DTC123EUA
CN301
SJH20-09WSF
+
C301
47/
450V
R301
390k
<1/4W>
R302
270
<1/4W>
D301
UF4007
4
3 2
1
C302
1000p
<E>
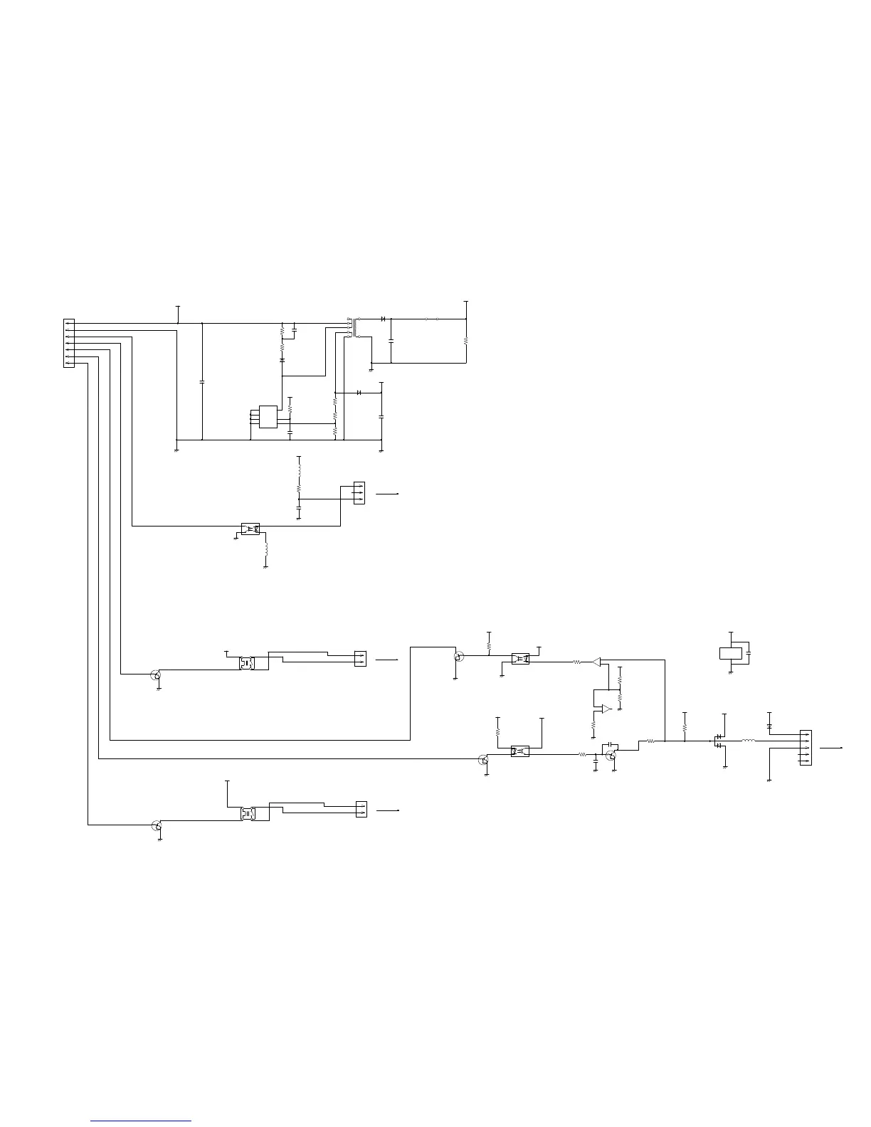
EX ( I N )
EX ( OUT )
EX ( ERROR OUT )
TO CONTROLLER PCB ASSEMBLY
INDOOR UNIT OPTION
UTY-TWBXF
COMMUNICATION PCB ASSEMBLY ( OPTION )
K10DC-1000HSE-CA0
2011.12.20 31

Related product manuals