EasyManua.ls Logo

Fujitsu ASU12RLF1 - Page 81

Fujitsu ASU12RLF1
105 pages
Print Icon
To Next Page IconTo Next Page
To Next Page IconTo Next Page
To Previous Page IconTo Previous Page
To Previous Page IconTo Previous Page
Loading...
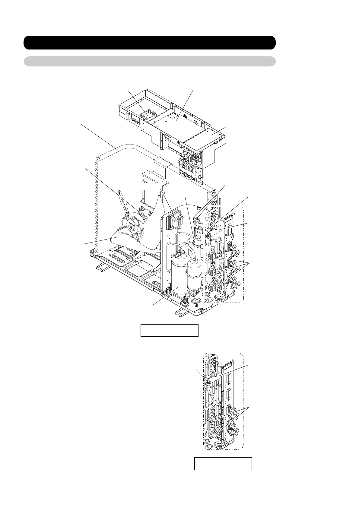
ACTPM
Compressor
4-way valve
4-way valve
3-1 AOU18/ 24RLXFZ
3-1-1 PARTS LAYOUT DRAWING
03-01
Motor DC Brushless
Propeller Fan assy
Condenser A assy
Coil (Expansion valve)&
Expansion valve
Coil (Expansion valve)&
Expansion valve
Solenoid
Solenoid
Pressure SW
Choke Coil
Accumulator
Main PCB
Filter PCB
AOU24RLXFZ
AOU18RLXFZ

Other manuals for Fujitsu ASU12RLF1

Related product manuals