EasyManua.ls Logo

Fujitsu ASU24RLQ - Page 11

Fujitsu ASU24RLQ
24 pages
Print Icon
To Next Page IconTo Next Page
To Next Page IconTo Next Page
To Previous Page IconTo Previous Page
To Previous Page IconTo Previous Page
Loading...
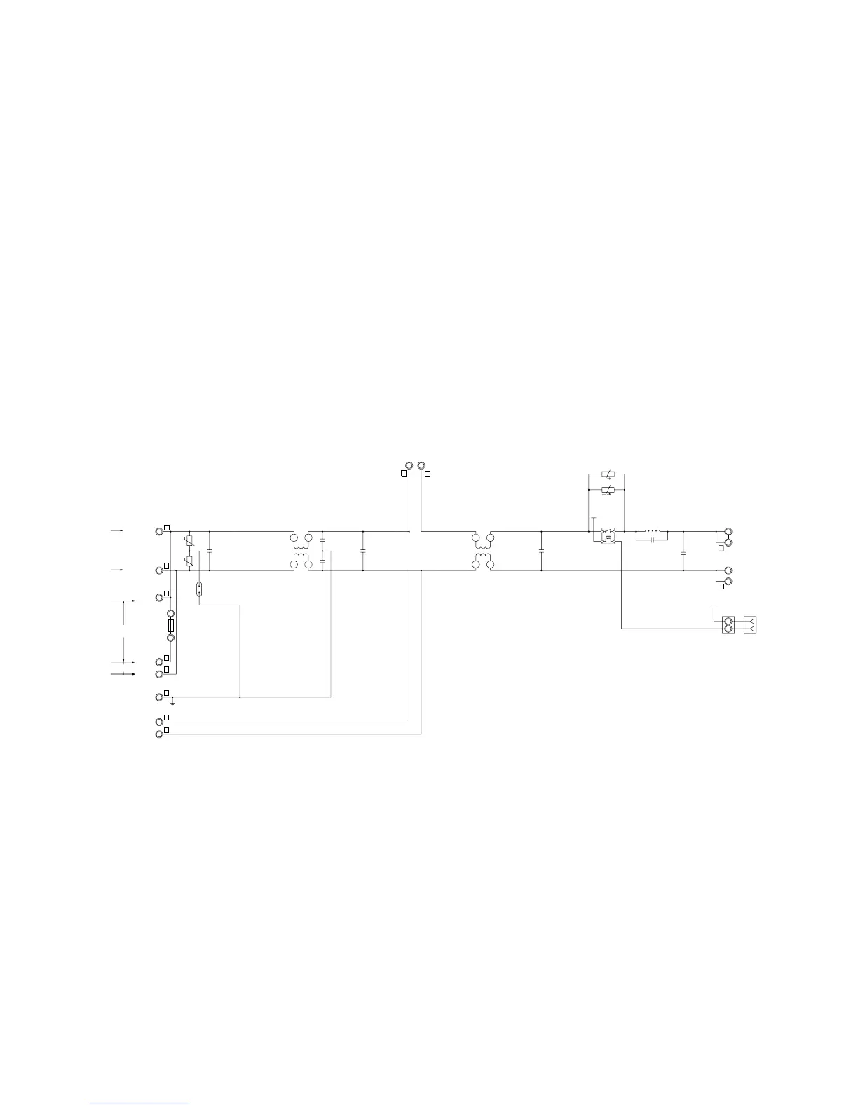
12V
K101
DW12D1
3
2
4
1
C108
1.0
<LE>
L102
N200500K1D7C
C107
1.0 <LE> - M
12V
B
B
R100 ZPR0RCH400A200 PTC THERMISTOR
R101 ZPR0RCH400A200 PTC THERMISTOR
CN100
172520-2
POWER RELAY CONTROL
TM2
W29
BROWN
W28
ORANGE
TM1
C106
1.0
<LE>
L101
RCH3818 - 022PF07
4 3
1
2
CT OUT
W21
GRAY
B
W9
BLACK
L100
RCH3818 - 022PF07
C103
1.0
<LE>
C104
0.022
<YE>
C105
0.022
<YE>
C100
3.3
<LE>
VA100, VA101
470V <TNR>
SA100
RA - 302M
4 3
1
2
B
B
B
B
B
B
B
B
F100
FSL 10A - 250V
FH100
PFC5000
- 0702
FH101
PFC5000
- 0702
W16
BLACK
W17
BLACK
W18
WHITE
W2
WHITE
W3
GREEN
W19
BLACK
W20
WHITE
or
TO INDOOR UNIT
N
L
L
N
L
W1
BLACK
EARTH
AC VOLT OUT
B
POWER SUPPLY PCB ASSEMBLY
K05CW-0500HUE-FL0
OUTDOOR UNIT
102006.10.13

Related product manuals