EasyManua.ls Logo

Fujitsu ASY7USACW - Stop Operation; About Mode Operation

Fujitsu ASY7USACW
18 pages
Print Icon
To Next Page IconTo Next Page
To Next Page IconTo Next Page
To Previous Page IconTo Previous Page
To Previous Page IconTo Previous Page
Loading...
7
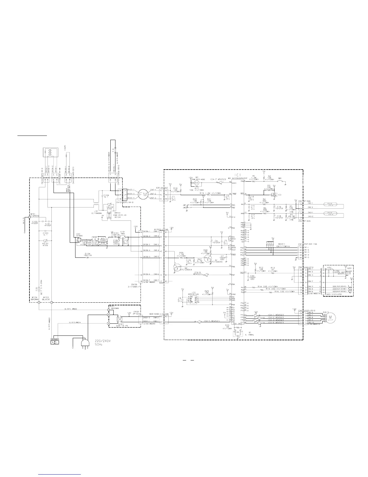
INDOOR PRINTED CIRCUIT BOARD
CIRCUIT DIAGRAM
Model : ASY7FSACW
POWER SUPPLY PCB
EZ-099SWSE-P
CONTROLLER PCB ASSEMBLY (MAIN PCB)
EZ-00004WSE-C
THERMAL FUSE
THERMAL FUSE
GRAY
GRAY
RED
RED
PURPLE
PURPLE
BLUE
MANUAL AUTO
SWITCH
WHT
WHT
BLK
WHT
YEL
BLK
RED
BLU
WHT
WHT
WHT
WHT
WHT
WHT
BRN
BROWN
BROWN
WHITE
BLUE
(GREEN / YELLOW)
FAN MOTOR
BLACK
POWER TRANS.
SECONDARY
POWER
SWITCH
POWER TRANSFORMER
EZ-030HSE-T
POWER TRANS.
PRIMARY
TERMINAL BOARD
RELAY PCB
EZ-0999HSE-K
BLACK
CHECKER
ROOM TEMPERATURE
THERMISTOR
PIPE TEMPERATURE
THERMISTOR
BLACK
GRAY
GRAY
FAN CAPACITOR
ORANGE
ORANGE
BROWN
RED
ORANGE
PURPLE
GREEN
YELLOW
BLUE
PURPLE
GRAY
WHITE
BLACK
BLUE
TIMER
SWING
OPERATE
(RED)
(GRN)
(ORG)
INDICATOR PCB
EZ-0953HSD-D
LOUVER
TO THE EARTH
PLUG-ON START
REMOTE CONTROL /
CUSTOM CODE

Other manuals for Fujitsu ASY7USACW

Related product manuals