EasyManua.ls Logo

Fujitsu ASYG09KMCF - Page 57

Fujitsu ASYG09KMCF
567 pages
Print Icon
To Next Page IconTo Next Page
To Next Page IconTo Next Page
To Previous Page IconTo Previous Page
To Previous Page IconTo Previous Page
Loading...
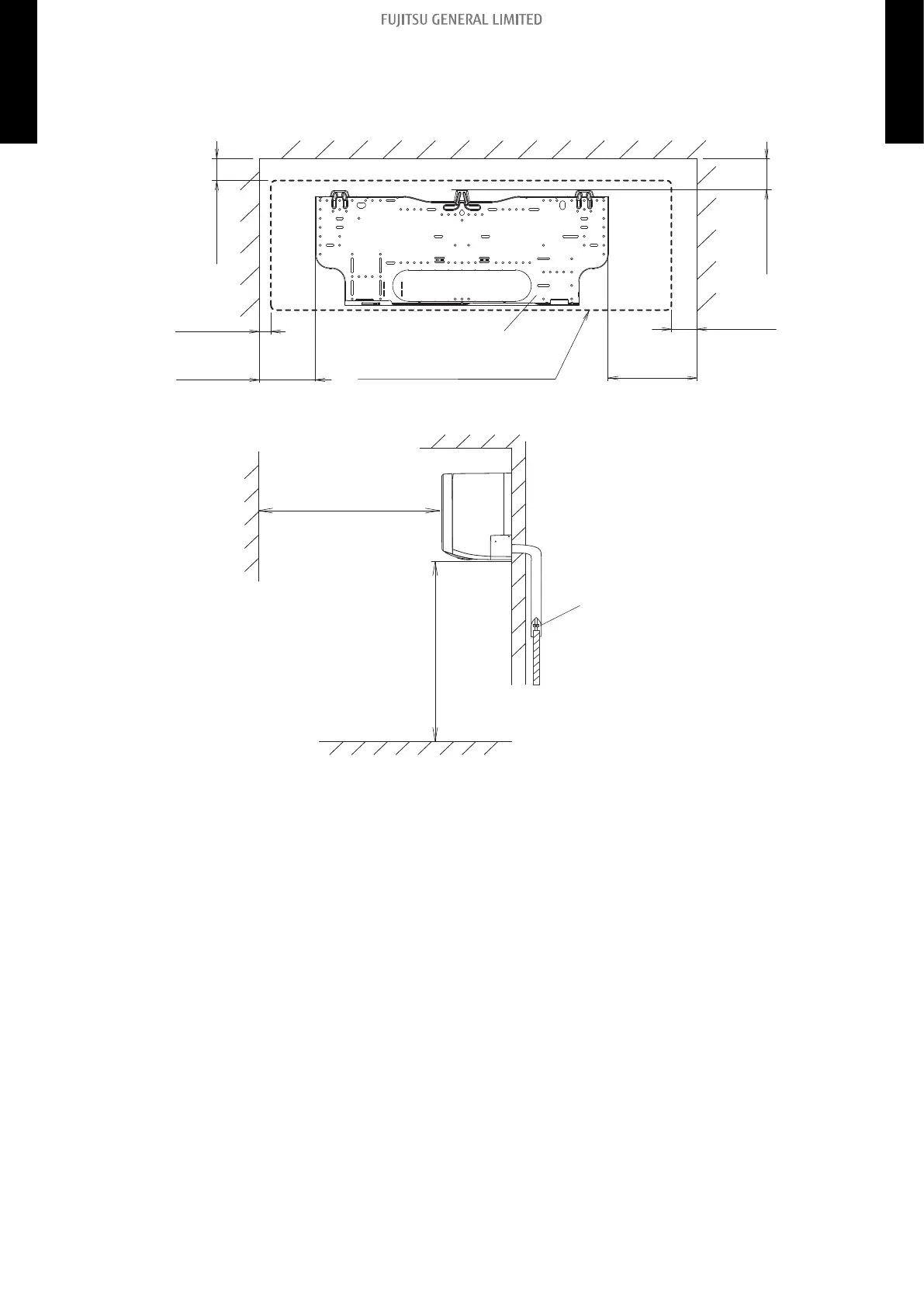
Installation space requirement
Provide sufficient installation space for product safety.
Unit: mm
Wall hook bracket
Outline of the indoor unit
50 or more
67 or more
40 or more
70 or more
107 or more
1,500 or more
1,800 or more
183 or more
A
A: Install so that the flare connection part is outdoors.
- 49 -
4-5. Wall mounted type
4. Dimensions
4-5 UNIT
MULTI-SPLIT TYPE
4-5 UNIT
MULTI-SPLIT TYPE

Table of Contents

Other manuals for Fujitsu ASYG09KMCF

Related product manuals