EasyManua.ls Logo

Fujitsu ASYG09LMCE - Page 35

Fujitsu ASYG09LMCE
425 pages
Print Icon
To Next Page IconTo Next Page
To Next Page IconTo Next Page
To Previous Page IconTo Previous Page
To Previous Page IconTo Previous Page
Loading...
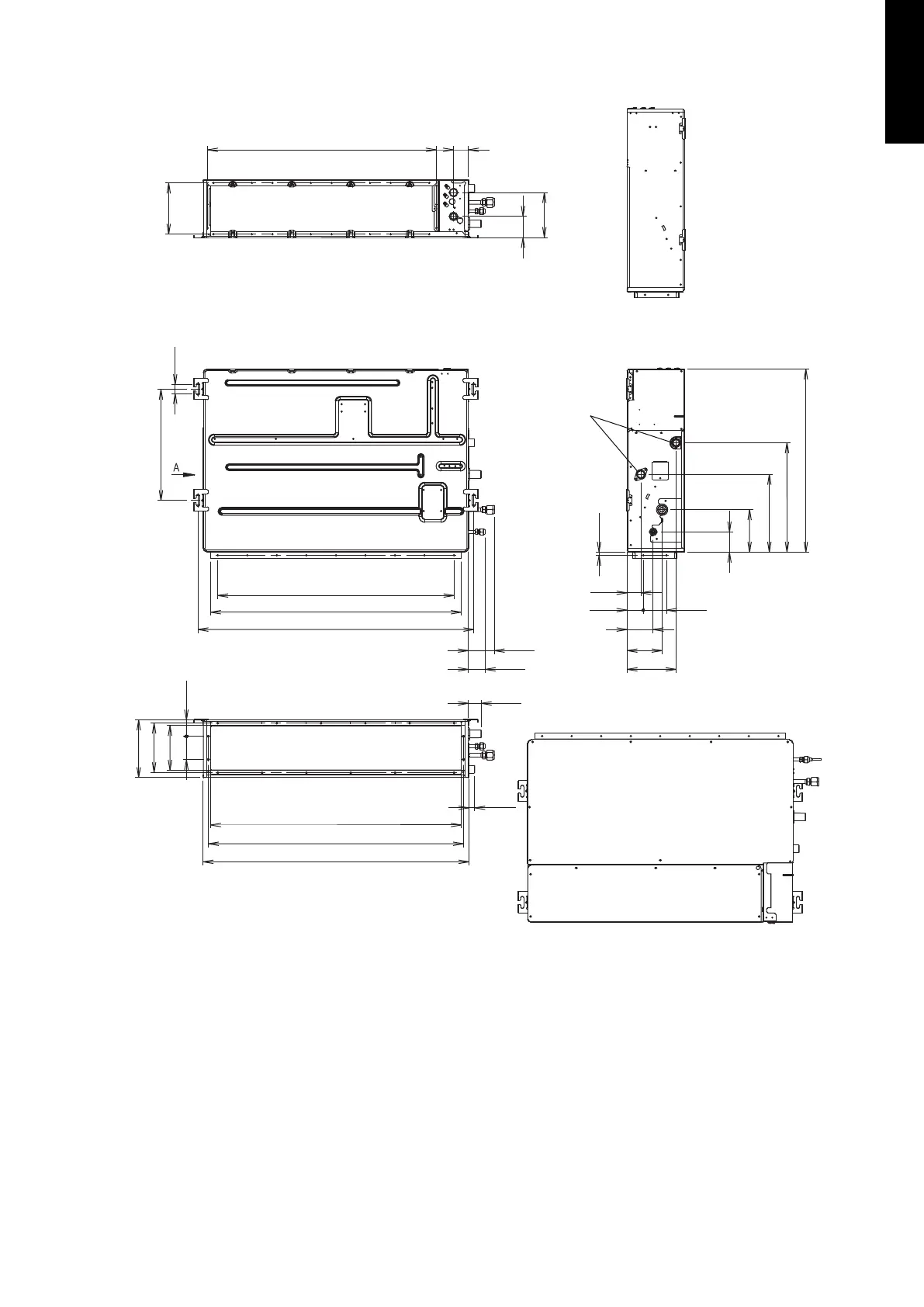
¢ Model: ARYG18LLTB
Rear view
View A
Top view
Side view
Front view
Bottom view
Drain port
51
774
174
71
152
87
56
850
934
100 x 8 = 800
30
377
167
119
89
78
55
47
10
620
371
264
144
69
850
864
900
43
20
198
168
151
78
55
Unit: mm
- 27 -
MULTI TYPE
5, 6 ROOMS TYPE

Table of Contents

Other manuals for Fujitsu ASYG09LMCE

Related product manuals