EasyManua.ls Logo

Fujitsu AUU36RCLX - Page 21

Fujitsu AUU36RCLX
45 pages
Print Icon
To Next Page IconTo Next Page
To Next Page IconTo Next Page
To Previous Page IconTo Previous Page
To Previous Page IconTo Previous Page
Loading...
5V
TM101
TM102
C112
0.015
<YE>
C113
0.015
<YE>
C111
3.3
<LE>
L4
RCH4730-021PF07
C107
3.3
<LE>
TM100
L2
N200500K1D7C
CT1
CT-1B
5V
D60
DAN217U
C64
0.1
<F>
R68 22K
<1/10W>
C65
0.1
<F>
VR1
B2K
+
R61 3.74K
<1/10W>
(1%)
C60
220/16V
<PJ>
R60 1.0K
<1/10W>
(1%)
SA100
RA-302M
C106
3.3
<LE>
C104
0.033
<YE>
C105
0.033
<YE>
C101
3.3
<LE>
VA101
470V
<TNR>
VA102
470V
<TNR>
B
B
B
B
B
B
B
BLACK
WHITE
TO INDOOR UNIT
POWER SOURCE
230V
60Hz
EARTH
AC VOLT OUT
W2
W5
W6
BLACK
WHITE
W7
GREEN
W3
W8
BLACK
WHITE
W9
W1
W4
L1
RCH4730-021PF07
CN1
B3B-XASK-1-A
WHITE
CT OUT
1
2
3
or
or
AOU18RLX, AOU24RLX : W4 and W5
AOU36RLX, AOU42RLX : W1 and W2
*
*
*
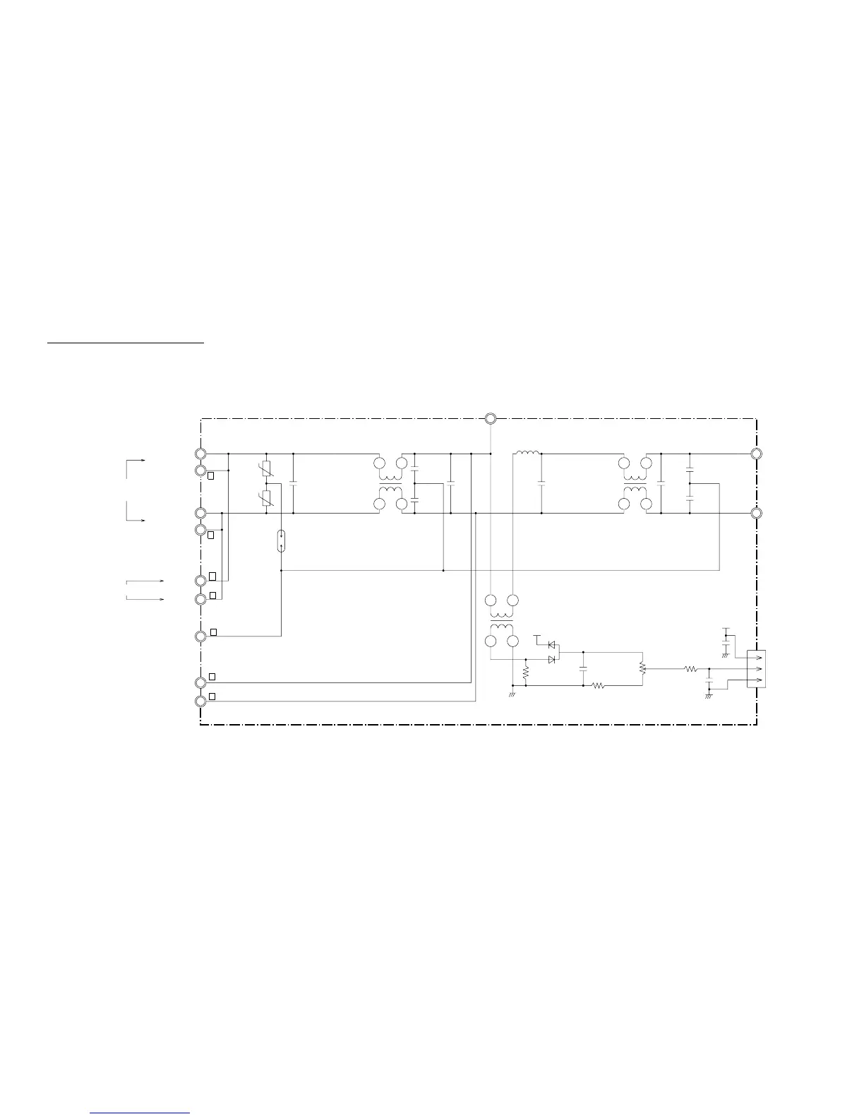
POWER SUPPLY PCB ASSEMBLY
AOU18RLX, 24RLX : K04BA-0500HUE-P0
AOU36RLX, 42RLX : K04BA-0501HUE-P0
2005.12.23 20
Models : AOU18RLX, AOU24RLX
AOU36RLX, AOU42RLX

Related product manuals