EasyManua.ls Logo

Fujitsu FGLair - Page 20

Fujitsu FGLair
58 pages
Print Icon
To Next Page IconTo Next Page
To Next Page IconTo Next Page
To Previous Page IconTo Previous Page
To Previous Page IconTo Previous Page
Loading...
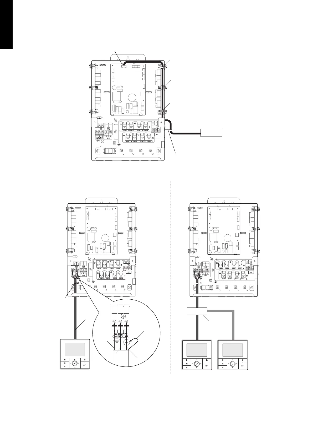
Wiring of zone control interface
1) UTY-CDPXZC
1. Connecting with indoor unit:
CN6
Cable tie (small)
(accessory)
Zone control interface
connecting cable (accessory)
Cable tie (small)
(accessory)
Indoor unit
Cable tie (small)
(accessory)
2. Connecting with remote controller:
Cable tie
(accessory)
Remote
cable
controller
(small)
Red
White
Black
Functional
earth (ground)
wire
Junction box
(locally purchased)
Up to 2 more controllers can be
When you install 2 remote controllers, use junction box
DESIGN & TECHNICAL MANUAL
- 16 -
ZONE CONTROL
SYSTEM

Related product manuals