EasyManua.ls Logo

Fujitsu FGLair - Zone Control Interface

Fujitsu FGLair
58 pages
Print Icon
To Next Page IconTo Next Page
To Next Page IconTo Next Page
To Previous Page IconTo Previous Page
To Previous Page IconTo Previous Page
Loading...
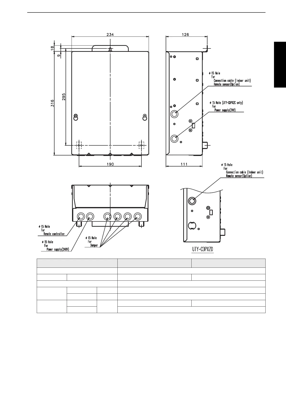
4-2. Zone Control Interface
Model name UTY-CDPXZC UTY-CDPXZD
Power supply 240 V ~ 50 Hz
Damper 24 V ~ 50 Hz 240 V ~ 50 Hz
Zone 1 to 8
Dimensions
(H × W × D)
Net mm 316 × 234 × 126
Gross mm 410 × 285 × 205
Weight
Net
kg
2.1 2.3
Gross 3.0
- 39 -
ZONE CTRL SYSTEM
with WLAN ADAPTER

Related product manuals